Extended three-storey house with large kitchen and parking for family convenience.
- Much-extended detached family home over three floors
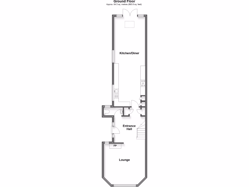
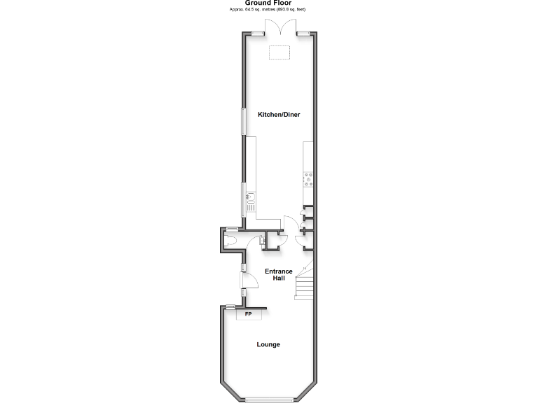
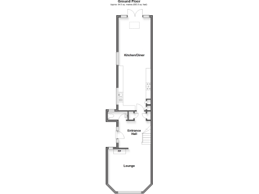
- Large 30ft kitchen/diner with contemporary fixtures
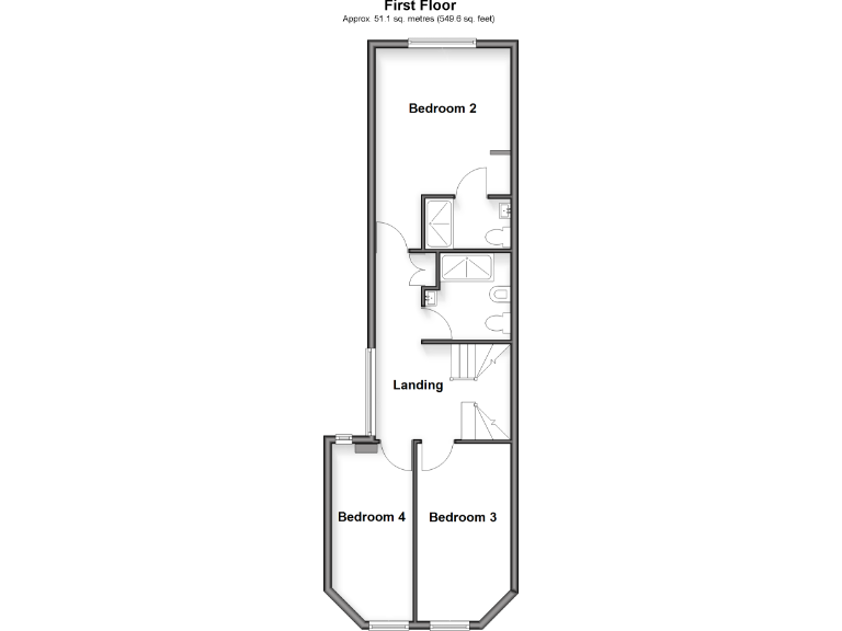
- Luxurious master with dressing area and en-suite
- Versatile garden room and decent rear garden
- Off-road parking for 2–3 cars plus garage
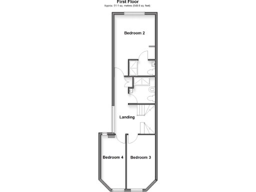
- Approx 1,034 sq ft; overall size described as small
- Built 1930–1949; verify extension consents and checks
- Council tax above average; driveway potential damp noted
A spacious, much-extended family home arranged over three floors in sought-after Upper Gillingham. The large kitchen/diner and versatile garden room provide flexible living space for family life and entertaining, while off-road parking for two to three cars and a garage add practical convenience.
The luxurious master suite includes a dressing area and en-suite, giving owners a private retreat. There are three further bedrooms and two shower rooms, making the layout well suited to growing families or multi-generational living. The property benefits from double glazing, mains gas central heating and fast broadband in an affluent, low-crime neighbourhood.
Buyers should note the house is of 1930s-1940s construction and was much extended; any purchaser must verify planning and building-regulation consents for the additions. The overall plot is decent but the internal total is modest (approximately 1,034 sq ft). Council tax sits above average and there is a note of potential damp on the driveway area that should be investigated.
Nearby schools rated Good and local transport links make the location family-friendly. With some selective updating and confirmation of extension paperwork, the property offers immediate comfortable living and clear potential to add value over time.
4 bedroom detached house for sale in First Avenue, Gillingham, ME7 — £500,000 • 4 bed • 3 bath • 1858 ft²
4 bedroom detached house for sale in Third Avenue, Upper Gillingham, Kent, ME7 — £525,000 • 4 bed • 2 bath • 1743 ft²
4 bedroom semi-detached house for sale in Hallwood Close, Parkwood, Gillingham, Kent, ME8 — £460,000 • 4 bed • 2 bath • 884 ft²
4 bedroom end of terrace house for sale in Woodlands Road, Gillingham, ME7 — £425,000 • 4 bed • 1 bath • 1457 ft²
5 bedroom detached house for sale in Second Avenue, Gillingham, Kent, ME7 — £700,000 • 5 bed • 2 bath • 2100 ft²
5 bedroom end of terrace house for sale in Gillingham Road, Gillingham, Kent, ME7 — £375,000 • 5 bed • 3 bath • 1382 ft²


































































































