Extended four-bedroom detached home on a quiet cul-de-sac with private garden and ample parking.
Cul-de-sac position in popular Stoke Park area
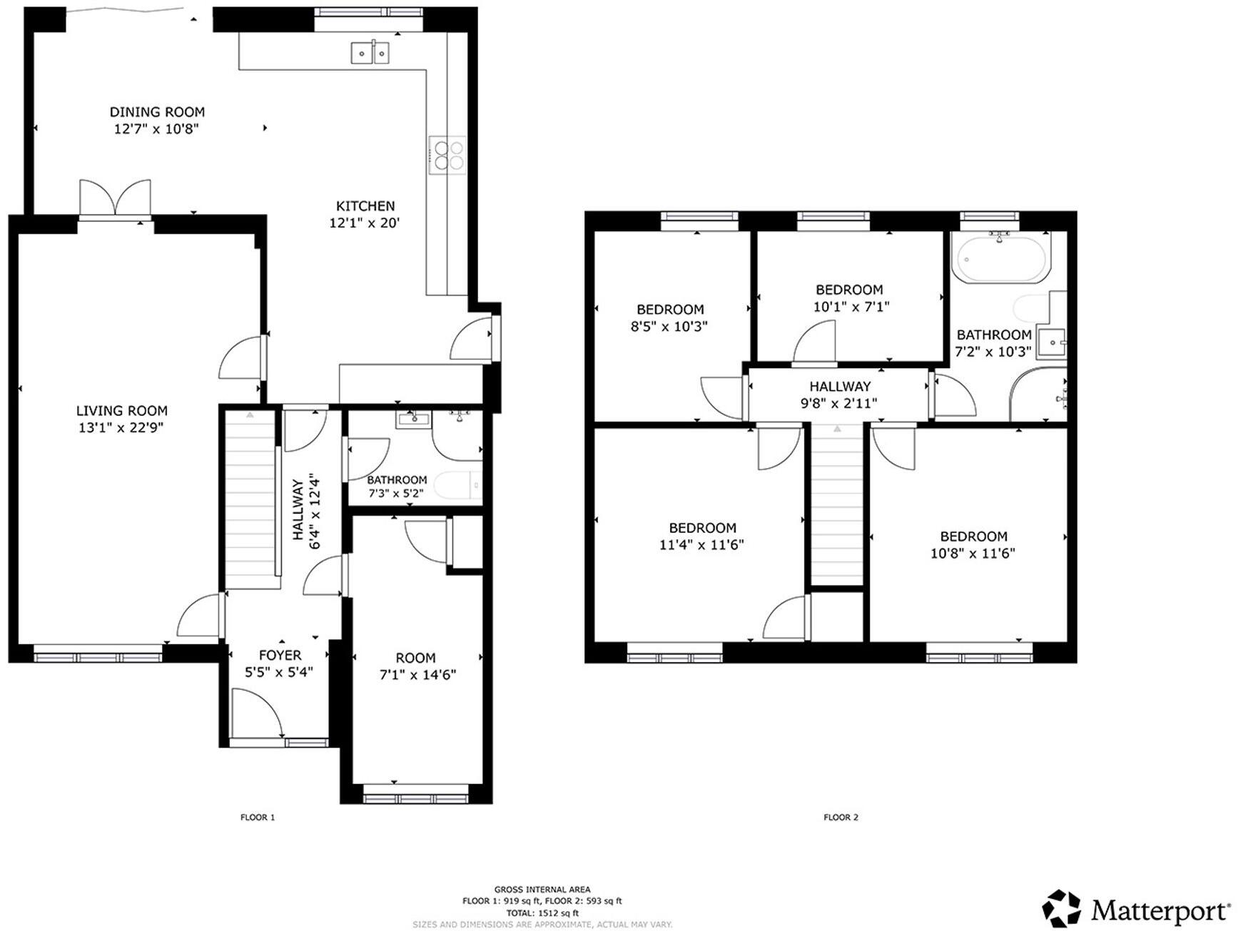
Extended detached layout with flexible ground-floor room
Open-plan kitchen/diner with integrated appliances
Four double bedrooms plus downstairs shower room
Non-overlooked rear garden and ample driveway parking
EPC rating C; built circa 1983–1990, double glazed post-2002
Council tax above average for the area
Nearby secondaries rated Good; some primaries Require Improvement
Set on a quiet cul-de-sac in sought-after Stoke Park, this extended detached house combines practical family space with contemporary living. The ground floor centres on a large open-plan kitchen/diner with integrated appliances and a substantial living room — ideal for daily life and entertaining. A convenient downstairs shower room and an additional ground-floor room provide flexible use as a guest bedroom, home office or snug.
Upstairs are four double bedrooms and a four-piece bathroom suite, offering generous sleeping space for a growing family. Double glazing (installed post-2002) and a gas boiler with radiators provide efficient year-round comfort. The property sits on a decent plot with a private, non-overlooked rear garden and off-street parking for several cars on the driveway.
Practical considerations are straightforward: the home is freehold, built in the late 1980s and has an EPC rating of C. Council tax is above average for the area. Local schools include both 'Good' rated secondaries and primary schools currently marked as 'Requires improvement', so parents should check individual school preferences. The neighbourhood is described as comfortable and affluent, with very low crime, fast broadband and excellent mobile signal.
This property will suit families seeking space, privacy and flexible accommodation in a popular Stoke Park location. It offers good ready-to-live-in condition with scope to personalise; buyers should note the EPC rating and local school performance when considering the purchase.
4 bedroom semi-detached house for sale in Leicester Close, Ipswich, IP2 — £315,000 • 4 bed • 1 bath • 1130 ft²
4 bedroom semi-detached house for sale in Leicester Close, Ipswich, IP2 — £275,000 • 4 bed • 1 bath • 1034 ft²
4 bedroom semi-detached house for sale in Chatsworth Crescent, Ipswich, IP2 — £280,000 • 4 bed • 2 bath • 1357 ft²
5 bedroom detached house for sale in Netley Close, Ipswich, IP2 — £370,000 • 5 bed • 2 bath • 1180 ft²
3 bedroom semi-detached house for sale in Chatsworth Crescent, Ipswich, IP2 — £220,000 • 3 bed • 1 bath • 883 ft²
3 bedroom end of terrace house for sale in Glastonbury Close, Ipswich, Suffolk, IP2 — £220,000 • 3 bed • 1 bath • 1024 ft²






























































































