Consented scheme for four two‑bed duplexes walking distance to stations and local amenities.
- Freehold plot with full planning permission granted 27 Feb 2025
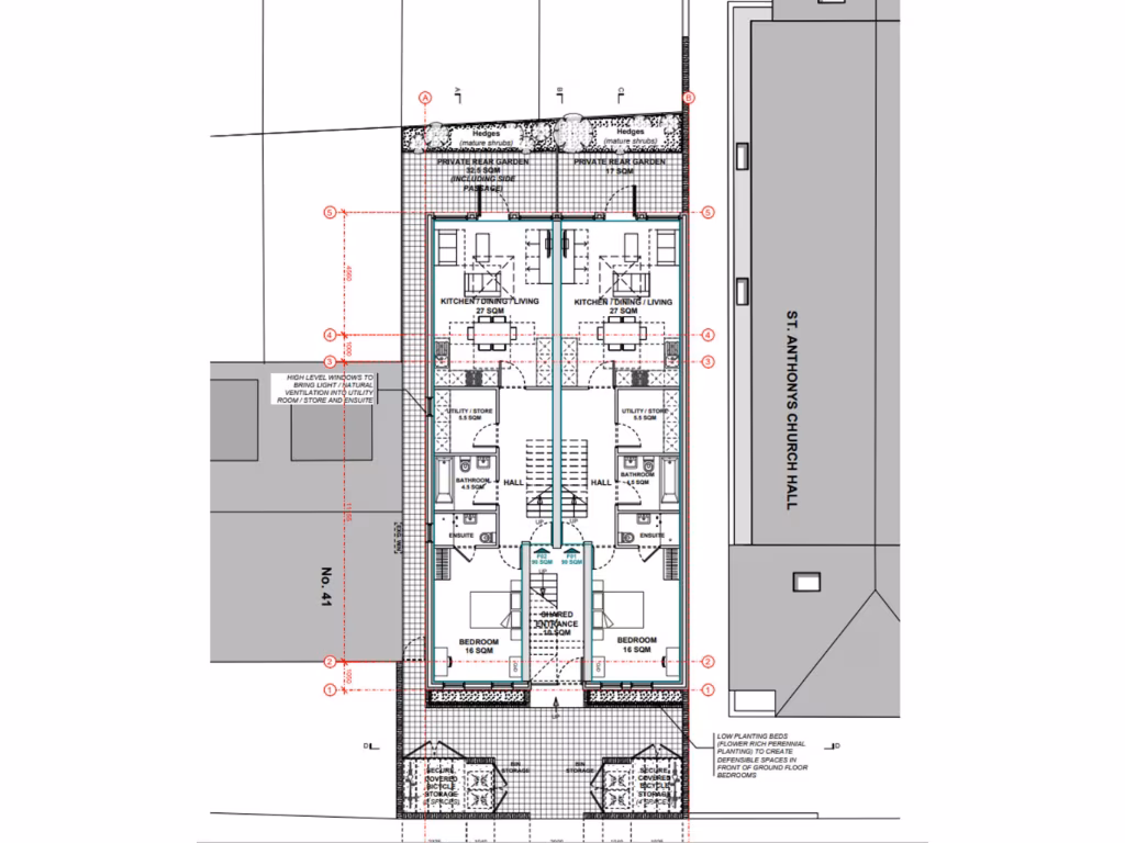
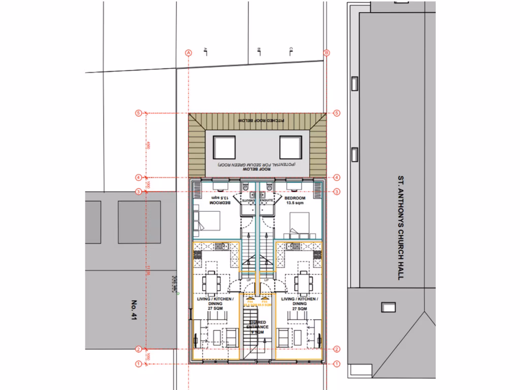
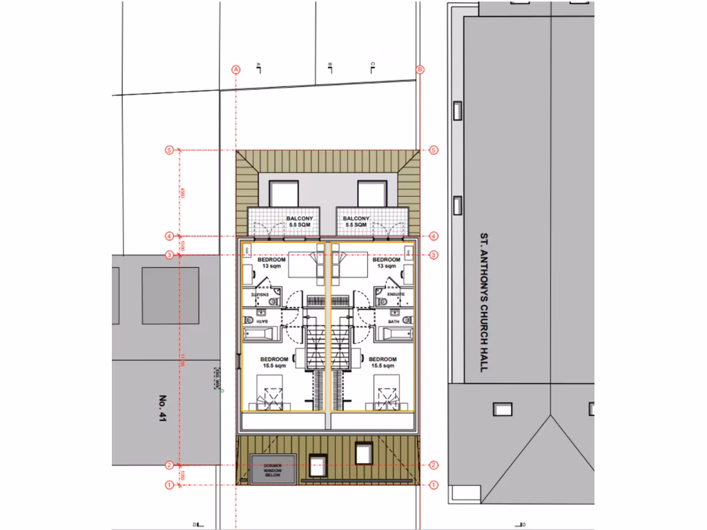
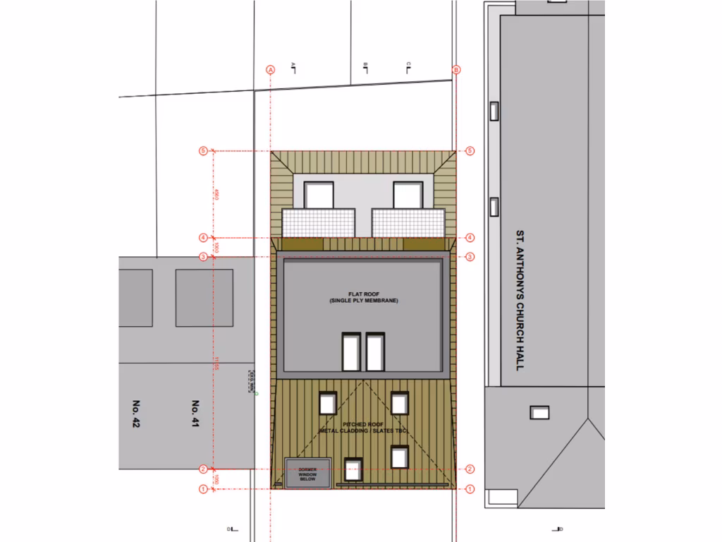
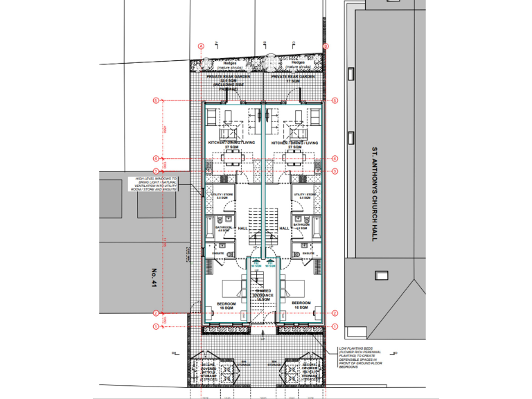
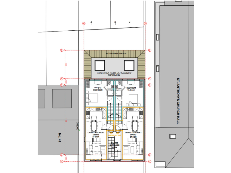
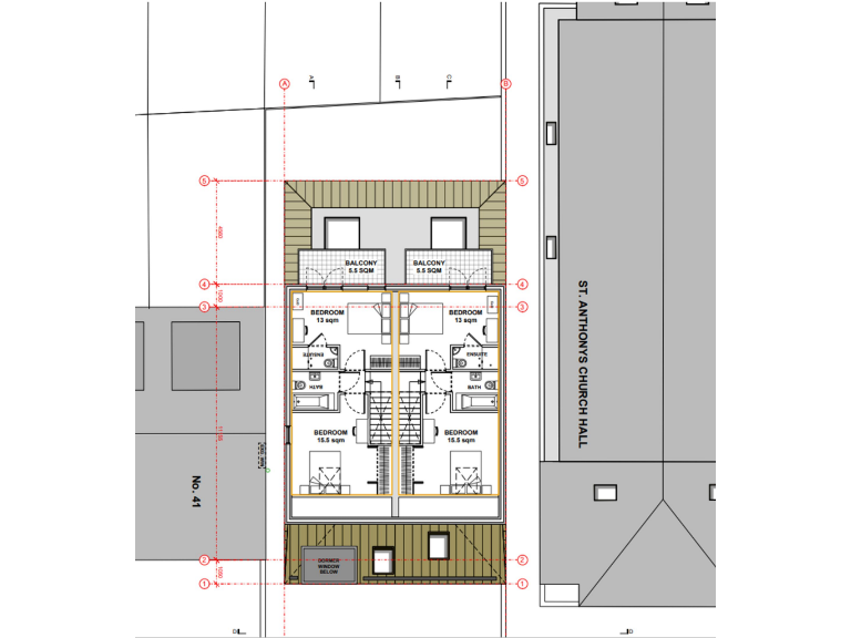
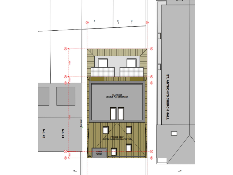
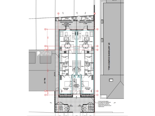
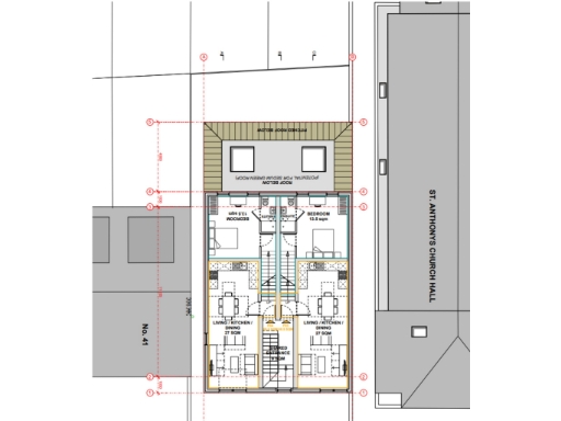
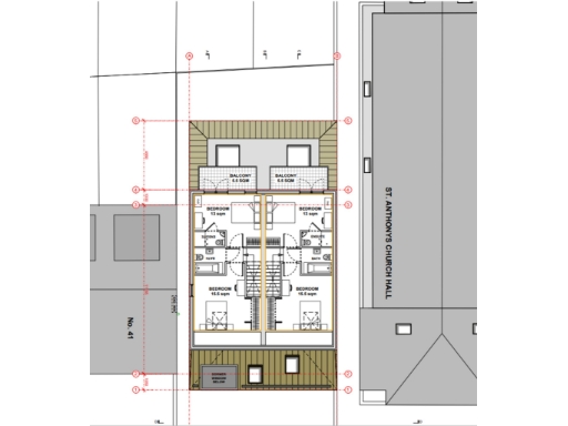
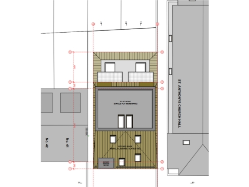
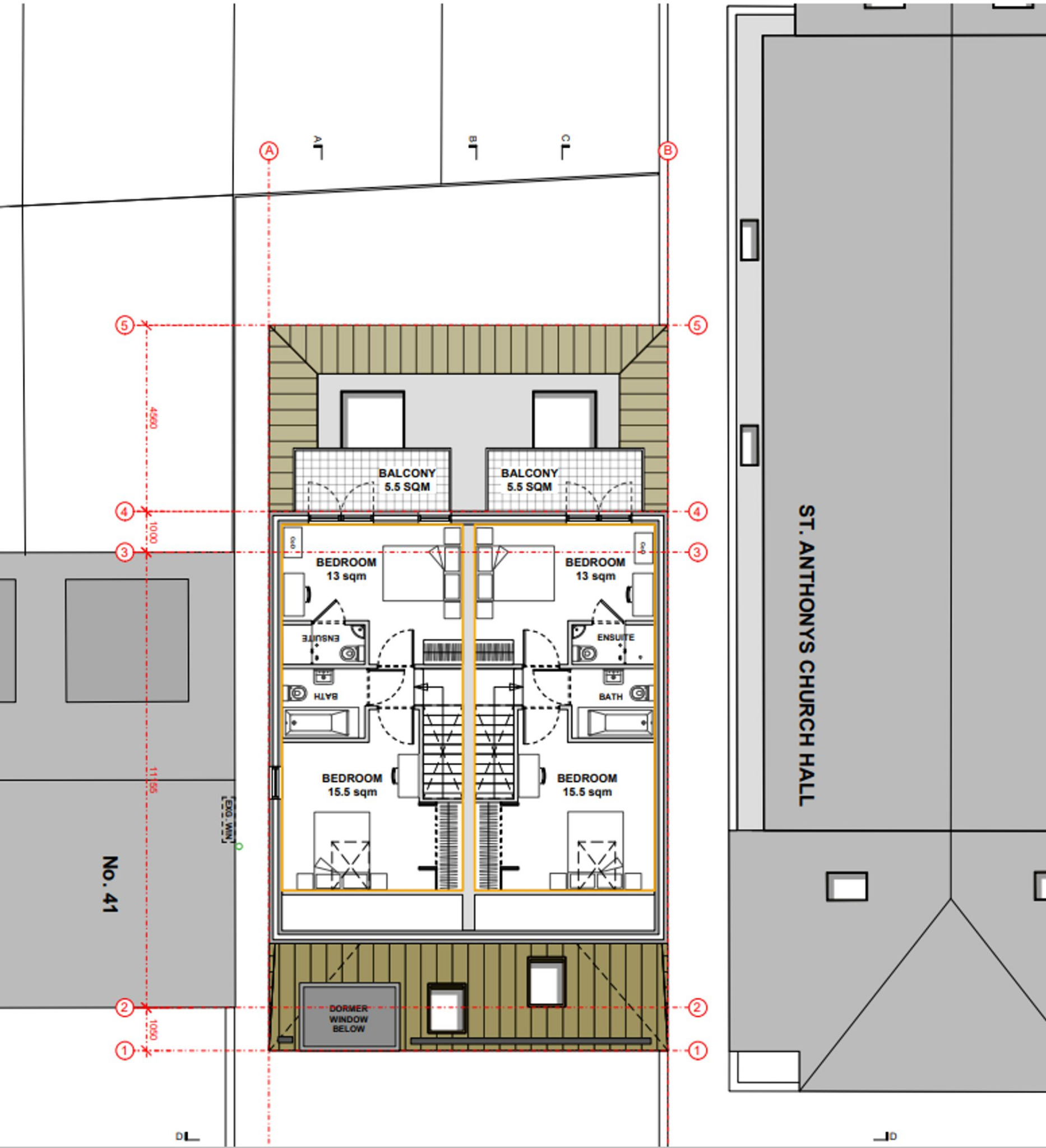
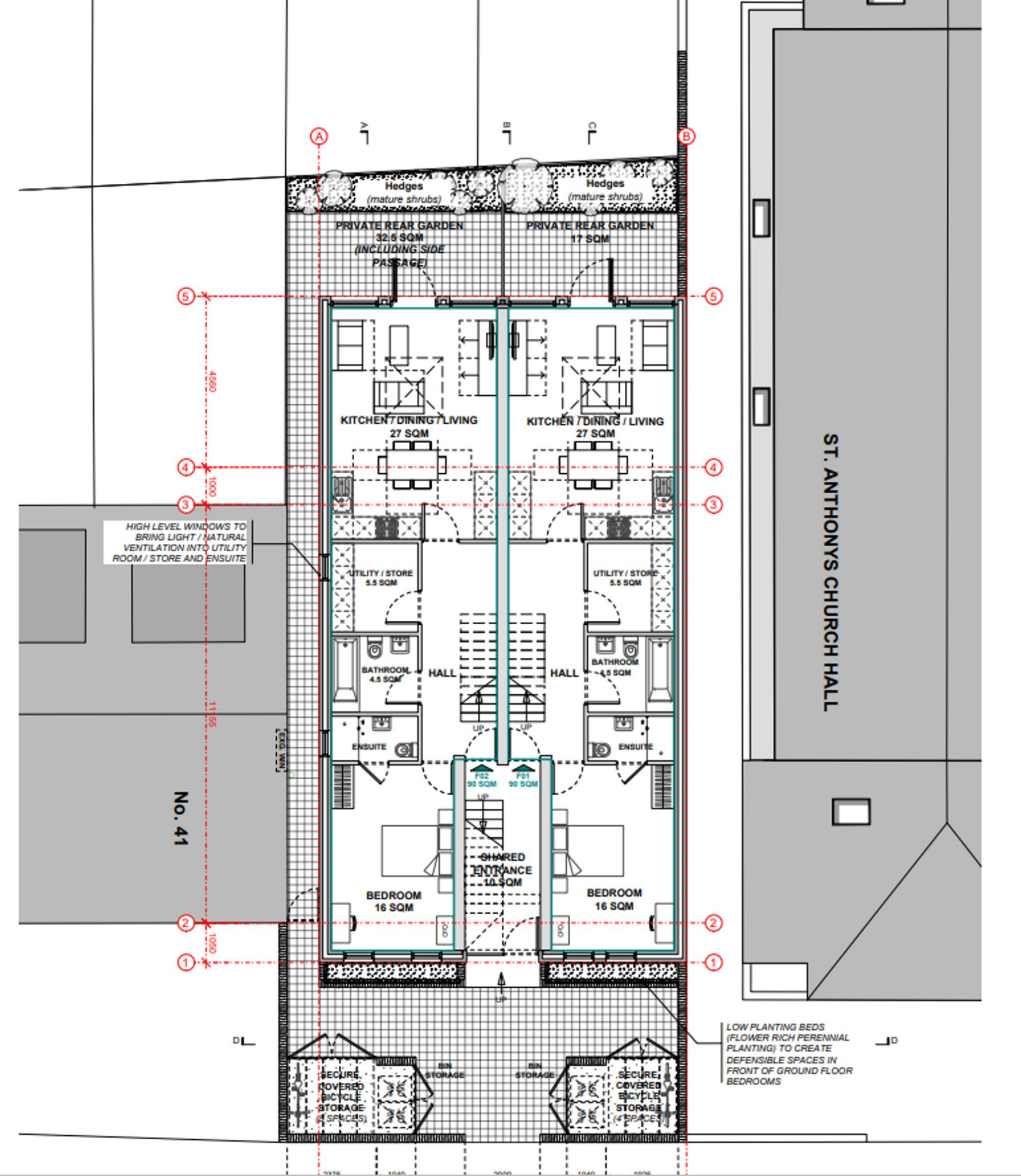
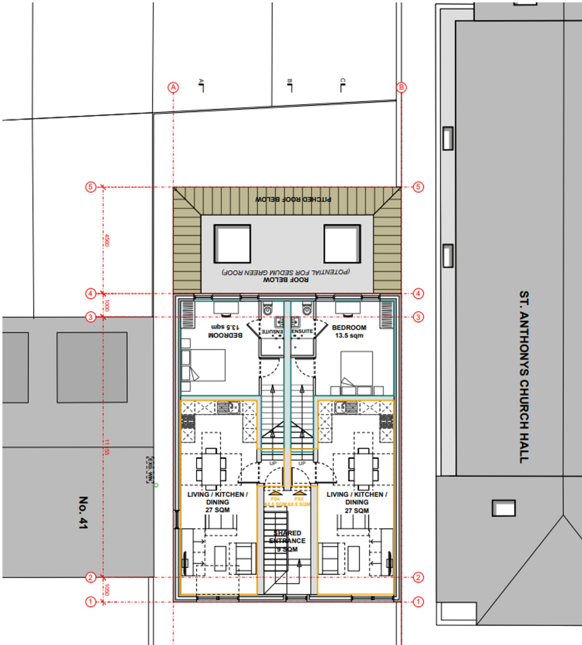
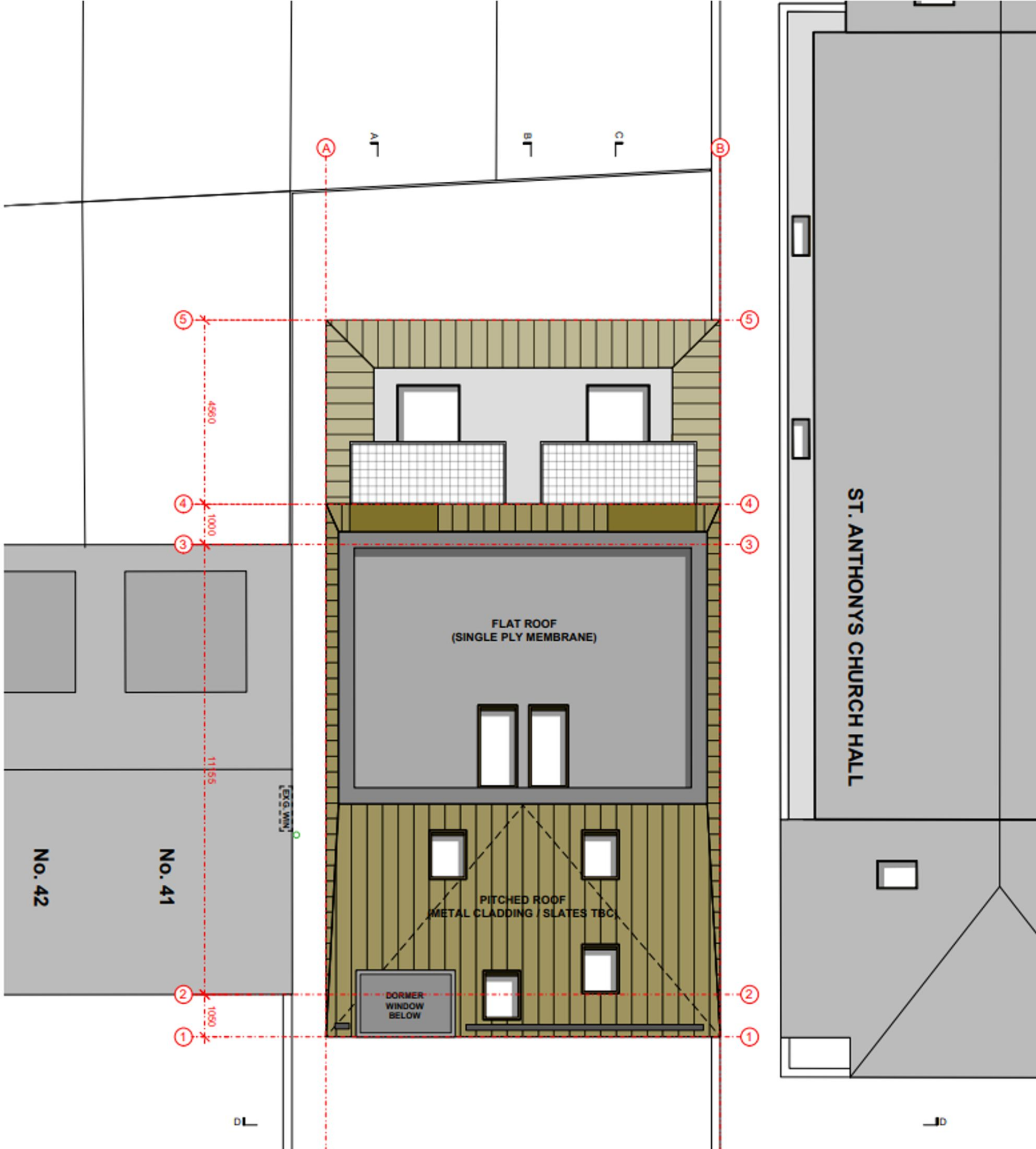
- Consent for 4 x two‑bedroom duplex apartments (three storeys)
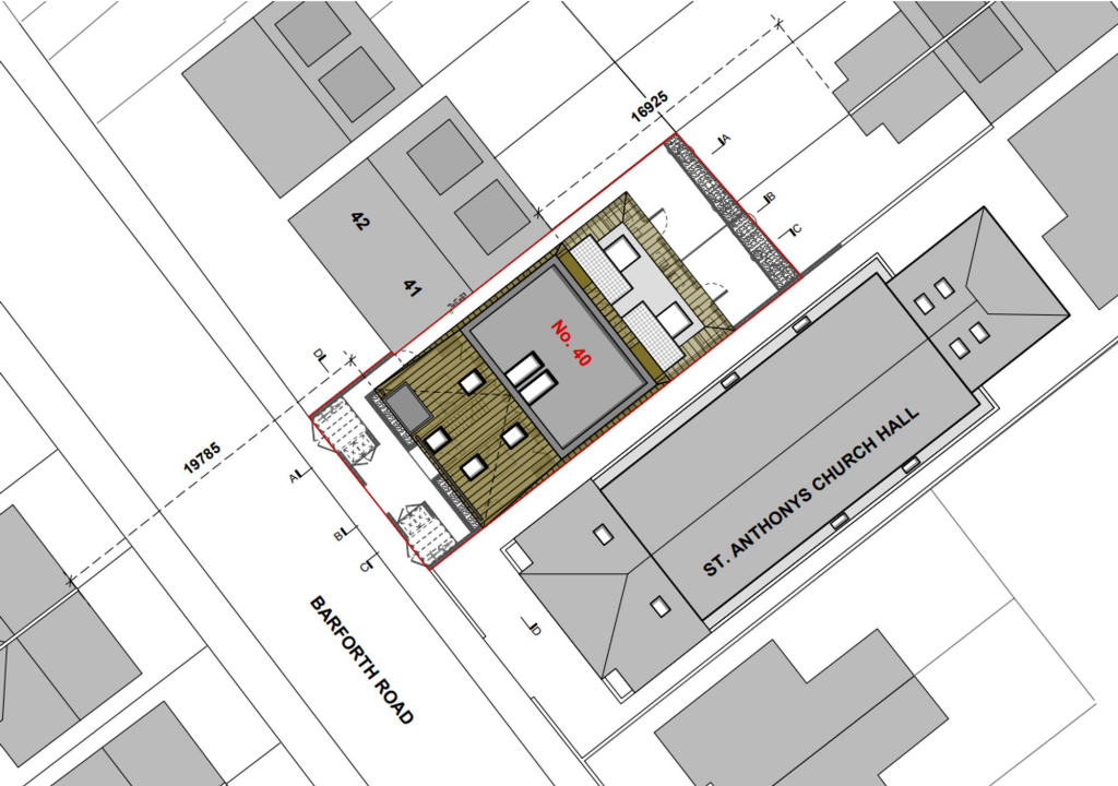
- Site area approx 269 sqm; overall large plot size
- Vacant possession on completion (currently tenanted until completion)
- Excellent public transport: Nunhead and Peckham Rye nearby
- Conservation area restrictions will govern detailed finishes
- Area shows higher deprivation metrics; consider demand profile
- Existing building requires demolition; construction costs not included
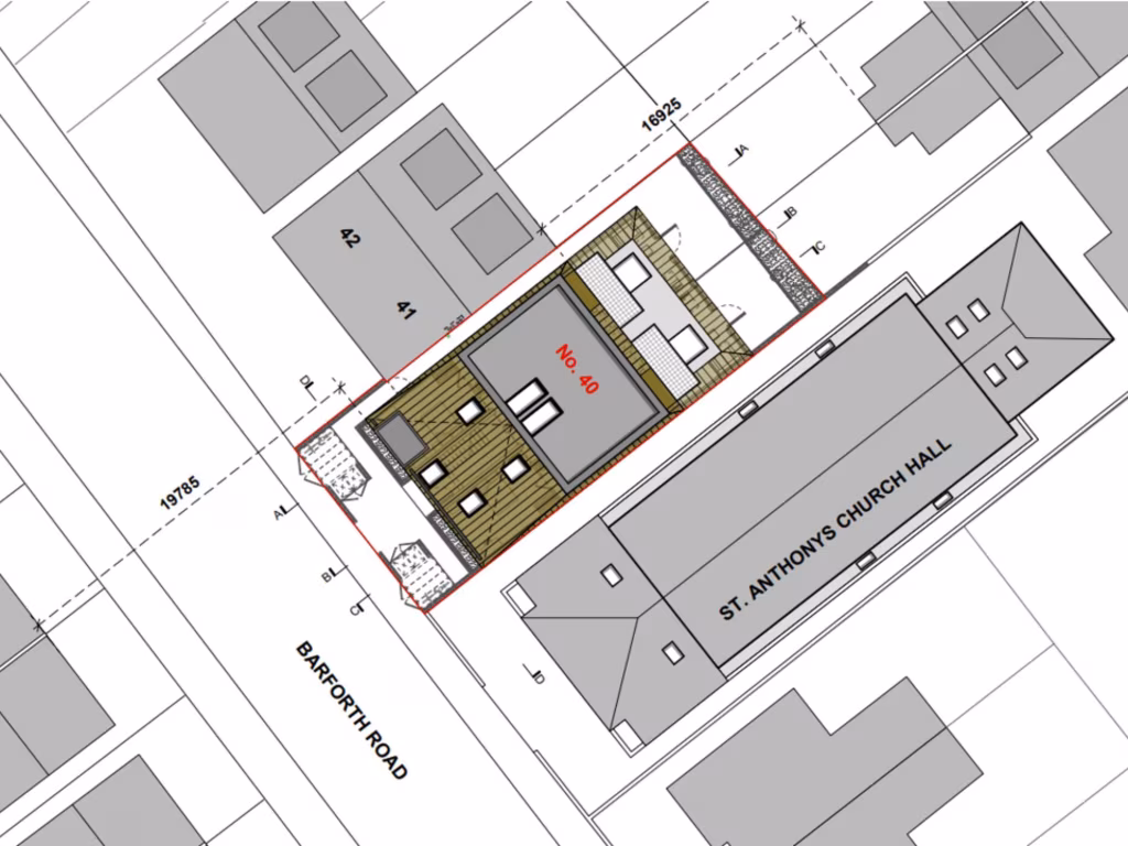
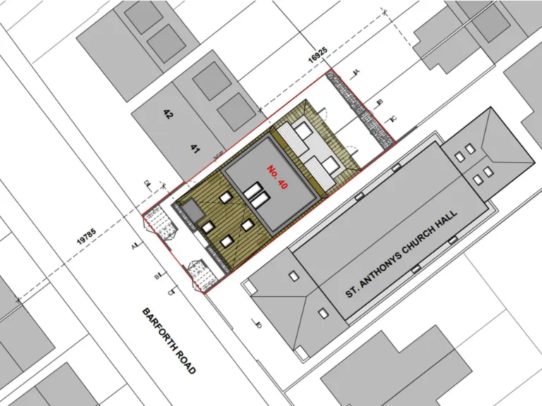
A rare freehold development opportunity in the heart of the Nunhead Green Conservation Area. Full planning permission (granted 27 Feb 2025) covers demolition of the existing 1980s detached house and construction of a three‑storey building delivering four two‑bedroom duplex apartments — a clear, consented route to delivery for a buyer or developer.
The site is approximately 269 sqm and currently occupied by tenants; it will be offered with vacant possession on completion. Transport links are excellent: Nunhead and Peckham Rye stations are within walking distance, providing swift connections to central London, which supports strong rental demand and resale prospects.
Buyers should note conservation-area controls and the need to demolish the existing low‑quality house before construction. The property sits in an area with higher deprivation metrics and above‑average council tax; construction and fit‑out costs will need to be factored into acquisition. The current EPC is D and existing services include mains gas heating and older double glazing, reflecting the profile of the building to be removed rather than the consented new scheme.
Plot for sale in 33 Sternhall Lane, London, SE15 — £1,500,000 • 5 bed • 1 bath • 678 ft²
5 bedroom semi-detached house for sale in 54 Lausanne Road, Peckham, London SE15 2JB, SE15 — £775,000 • 5 bed • 1 bath
Commercial property for sale in 241 Stanstead Road, Lewisham, London SE23 1HU, SE23 — £1,200,000 • 1 bed • 1 bath • 4111 ft²
Residential development for sale in Wells Park Road, London, SE26 6RQ, SE26 — £2,500,000 • 33 bed • 20 bath • 16609 ft²
4 bedroom house for sale in Carden Road, Peckham, SE15 — £1,250,000 • 4 bed • 2 bath • 3591 ft²
Plot for sale in Slade Green Road, Erith, DA8 — £2,750,000 • 1 bed • 1 bath


























































