One-bedroom bungalow consent in a peaceful canal-side village location.
- Planning permission granted for one-bedroom detached bungalow
- Freehold plot in a very affluent, low-crime village area
- Existing timber workshop is dilapidated; requires removal or full rebuild
- Small plot size limits house footprint and expansion potential
- Garage parking available; convenient for a compact home
- Close to Grand Union Canal, village amenities and good schools
- Excellent mobile signal and fast broadband for remote working
- Buyers should allow budget for clearance, connections and build costs
A rare village building plot with planning permission already granted for a one‑bedroom detached bungalow, located on Little Lane in Blisworth. The site is freehold and sits in a very affluent, low‑crime area with excellent mobile signal and fast broadband — well suited to someone seeking a peaceful, connected rural retreat.
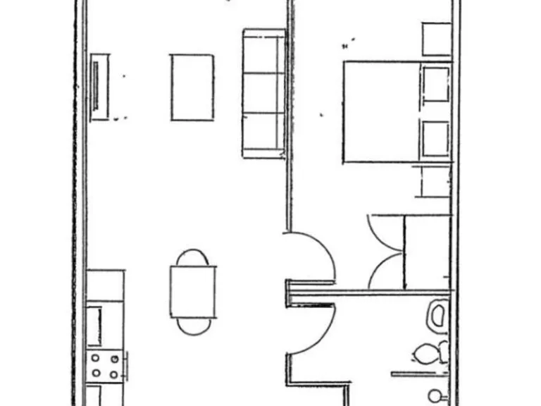
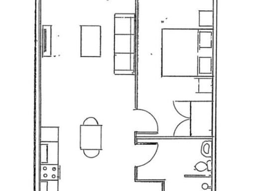
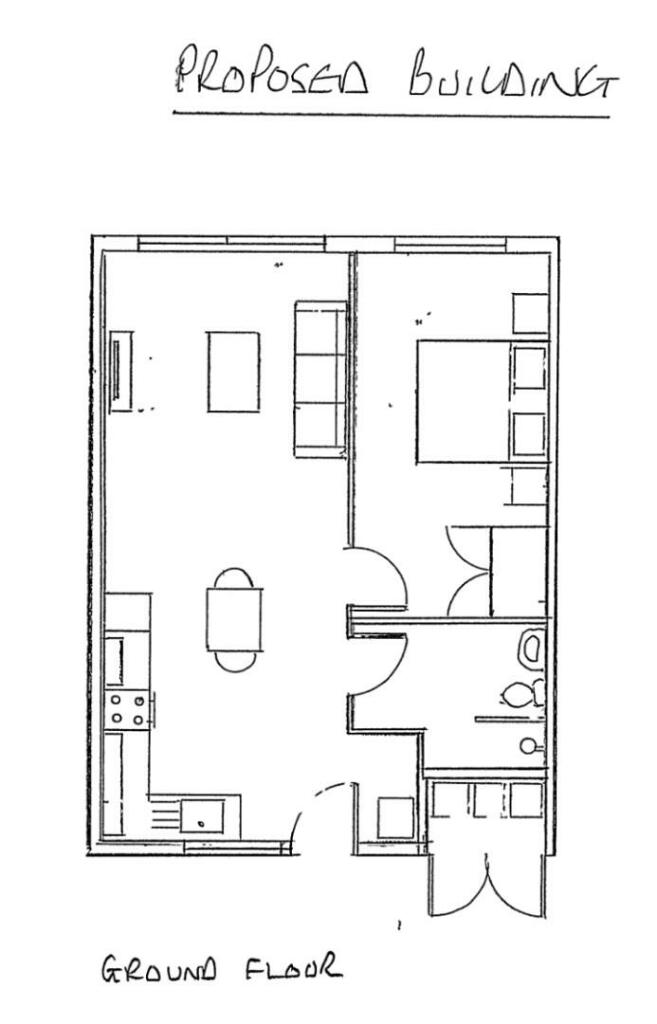
The existing timber workshop/shed on site is weathered and dilapidated; it will need removal or a full rebuild to realise the approved bungalow. The plot is small, so the finished home will be compact: the approved layout provides one reception room and one bathroom, designed for single occupancy or a couple. Parking is available via the existing garage arrangement.
Set close to the Grand Union Canal and village amenities, the plot offers easy access to local schools, shops and public transport while retaining a countryside feel. Buyers should budget for site clearance, possible services connections and the usual build costs; this is a turnkey planning opportunity rather than a ready home.
This is a straightforward proposition for downsizers or buyers wanting a bespoke, low‑maintenance home in a desirable village setting. The modest footprint and one‑bedroom consent limit expansion, so this suits someone prioritising location and a tailor‑made compact home rather than a large family property.
Plot for sale in Main Road, Shutlanger, NN12 — £120,000 • 1 bed • 1 bath
Land for sale in Land On The North Side Of The Royal Oak, Chapel Lane, Blisworth, Northampton, NN7 3BU, NN7 — POA • 1 bed • 1 bath • 7405 ft²
Land for sale in Plot 4, Salcey View, Piddington, Northampton, NN7 — £370,000 • 1 bed • 1 bath
Plot for sale in 13 Hartwell Road, Roade, NN7 — £275,000 • 1 bed • 1 bath • 3336 ft²
Plot for sale in Hartwell Road, Roade, NN7 — £325,000 • 1 bed • 1 bath • 4273 ft²
Land for sale in Self Build Land Plots at Poundfield Road, Potterspury, Towcester, Northamptonshire, NN12 — £275,000 • 1 bed • 1 bath • 1950 ft²






























