Well-priced starter home with peaceful rear views and commuter links.
Freehold mid-terraced house with two double bedrooms
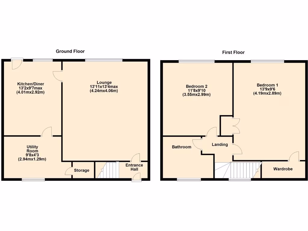
This compact mid-terraced house offers straightforward, affordable accommodation ideal for first-time buyers or buy-to-let investors. The ground floor has a welcoming hallway, a comfortably sized lounge and a generous kitchen/diner with an adjoining utility room that adds practical storage and appliance space. Upstairs are two double bedrooms and a modern family bathroom; principal rooms benefit from good natural light.
Outside, the small rear garden is private and backs directly onto open fields, providing a peaceful outlook and outdoor space for relaxing or entertaining. The property is freehold, has mains gas central heating and double glazing, and is located within easy reach of local schools, shops and Stanford-le-Hope station for commuter links to London.
Be aware the house is modest in overall size (approx. 596 sq ft) and sits in an area with higher levels of deprivation and transitional neighbourhood characteristics. The property is an older system-built house with assumed limited wall insulation, so further energy-efficiency upgrades may be needed. Cosmetic updating or targeted refurbishment could add value for owner-occupiers or landlords.
Practical points: Council Tax Band C, no recorded flood risk, excellent mobile signal and fast broadband speeds. Buyers should verify services, structural details and planning or building consents; basic checks such as boiler service and electrics are recommended before purchase.
3 bedroom terraced house for sale in Delius Way, Stanford-le-Hope, SS17 — £350,000 • 3 bed • 1 bath • 599 ft²
House for sale in Prospect Avenue, Stanford-Le-Hope, SS17 — £350,000 • 1 bed • 1 bath
3 bedroom terraced house for sale in Grove Road, Stanford-Le-Hope, SS17 — £315,000 • 3 bed • 1 bath • 808 ft²
3 bedroom end of terrace house for sale in Silverdale, Stanford-le-Hope, SS17 — £375,000 • 3 bed • 1 bath • 733 ft²
3 bedroom end of terrace house for sale in Broadhope Avenue, Stanford-le-Hope, SS17 — £415,000 • 3 bed • 1 bath • 773 ft²
3 bedroom end of terrace house for sale in Armstrong Close, Stanford-Le-Hope, SS17 — £375,000 • 3 bed • 2 bath • 921 ft²






























































