Immaculate three-bedroom property with garden and double garage near Abington Park.
Victorian bay-fronted terraced house with period features
Three bedrooms and one family bathroom
Immaculate condition with modern fitted kitchen
Double-glazed throughout; EPC rating C
Small plot with modest front garden
Double garage accessed via rear service road
Cellar providing additional storage space
Area records above-average crime; limited kerbside parking
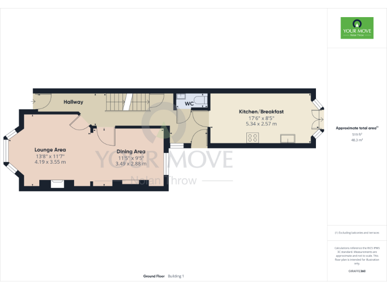
This immaculately presented three-bedroom mid-terrace combines period character with practical modern upgrades. Bay windows, high ceilings and original detailing create bright, airy reception rooms while recent double glazing and a C-rated EPC help keep running costs reasonable.
The layout suits a family or commuter couple: a generous open-plan living and dining area flows to a modern fitted kitchen with French doors leading to a neatly kept rear garden. A cellar adds useful storage and a double garage at the bottom of the garden provides secure vehicle or hobby space, accessed via a rear service road.
Upstairs are three bedrooms and a family bathroom; the main bedroom benefits from built-in wardrobes. The property occupies a desirable Abington location a short walk from Abington Park and local amenities, with fast broadband and excellent mobile signal for remote working.
Practical points to note: the plot is modest with a small front garden and limited kerbside parking; the area records above-average crime levels. The house has one family bathroom only and, while well maintained, buyers seeking extensive outside space or immediate on-street parking should consider these constraints.
3 bedroom terraced house for sale in Cedar Road East, Northampton, NN3 — £280,000 • 3 bed • 1 bath • 1278 ft²
3 bedroom terraced house for sale in Cedar Road East, Northampton, NN3 — £280,000 • 3 bed • 1 bath • 1002 ft²
5 bedroom terraced house for sale in Abington Avenue, Northampton, NN1 — £440,000 • 5 bed • 2 bath • 2247 ft²
3 bedroom terraced house for sale in Birchfield Road, Abington, Northamptonshire, NN1 — £365,000 • 3 bed • 1 bath • 1405 ft²
3 bedroom end of terrace house for sale in Birchfield Road, Northampton, Northamptonshire, NN1 — £320,000 • 3 bed • 1 bath • 1565 ft²
3 bedroom terraced house for sale in Turner Street, Abington, Northampton NN1 — £235,000 • 3 bed • 1 bath • 997 ft²


















































































