Ideal family starter with garden and garage en bloc.
Three bedrooms: two doubles and one single
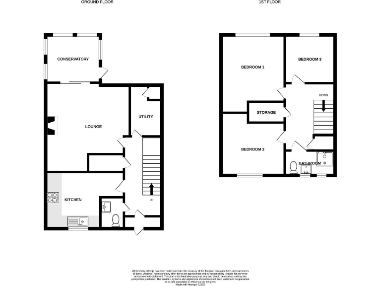
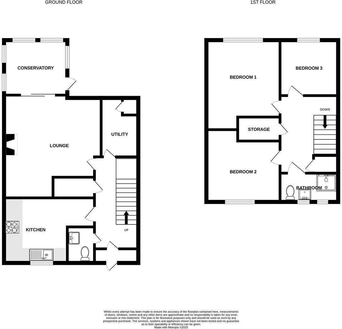
This well-laid-out three-bedroom mid-terrace sits in a residential pocket of Bideford, a short walk from local shops and schools. The ground floor offers a kitchen/diner, generous lounge opening to a conservatory, utility/boot room and a handy cloakroom—providing sensible family living space. Two double bedrooms, a single bedroom and a roomy walk-in storage cupboard occupy the first floor alongside a practical shower room.
Outdoor space includes a low-maintenance front lawn and a level rear garden with patio and lawn, plus a single garage en bloc. The house benefits from mains gas central heating, double glazing and fast broadband—features useful for everyday family life or letting purposes. The property sits on a small plot and is a mid-20th-century build with filled cavity walls, so it suits buyers who want straightforward, functional accommodation with potential to modernise.
Notable considerations: the area records above-average crime, the garage is en bloc (not immediately attached), and some cosmetic updating may be desired to personalise the home. Council tax is very low, and broadband speeds are high—attributes that help running costs. Overall this is a practical family starter or buy-to-let with sensible downstairs living and outdoor space.
3 bedroom semi-detached house for sale in Abbots Drive, Bideford, EX39 — £250,000 • 3 bed • 1 bath • 871 ft²
3 bedroom terraced house for sale in Monks Close, Bideford, EX39 — £175,000 • 3 bed • 1 bath • 850 ft²
3 bedroom terraced house for sale in Pynes Lane, Bideford, Devon, EX39 — £189,000 • 3 bed • 1 bath • 992 ft²
3 bedroom terraced house for sale in Stucley Road, Bideford, EX39 — £165,000 • 3 bed • 1 bath • 786 ft²
3 bedroom end of terrace house for sale in Fulford Close, Bideford, Devon, EX39 — £240,000 • 3 bed • 2 bath • 810 ft²
3 bedroom end of terrace house for sale in Royston Road, Bideford, Devon, EX39 — £235,000 • 3 bed • 1 bath • 1082 ft²






























































































