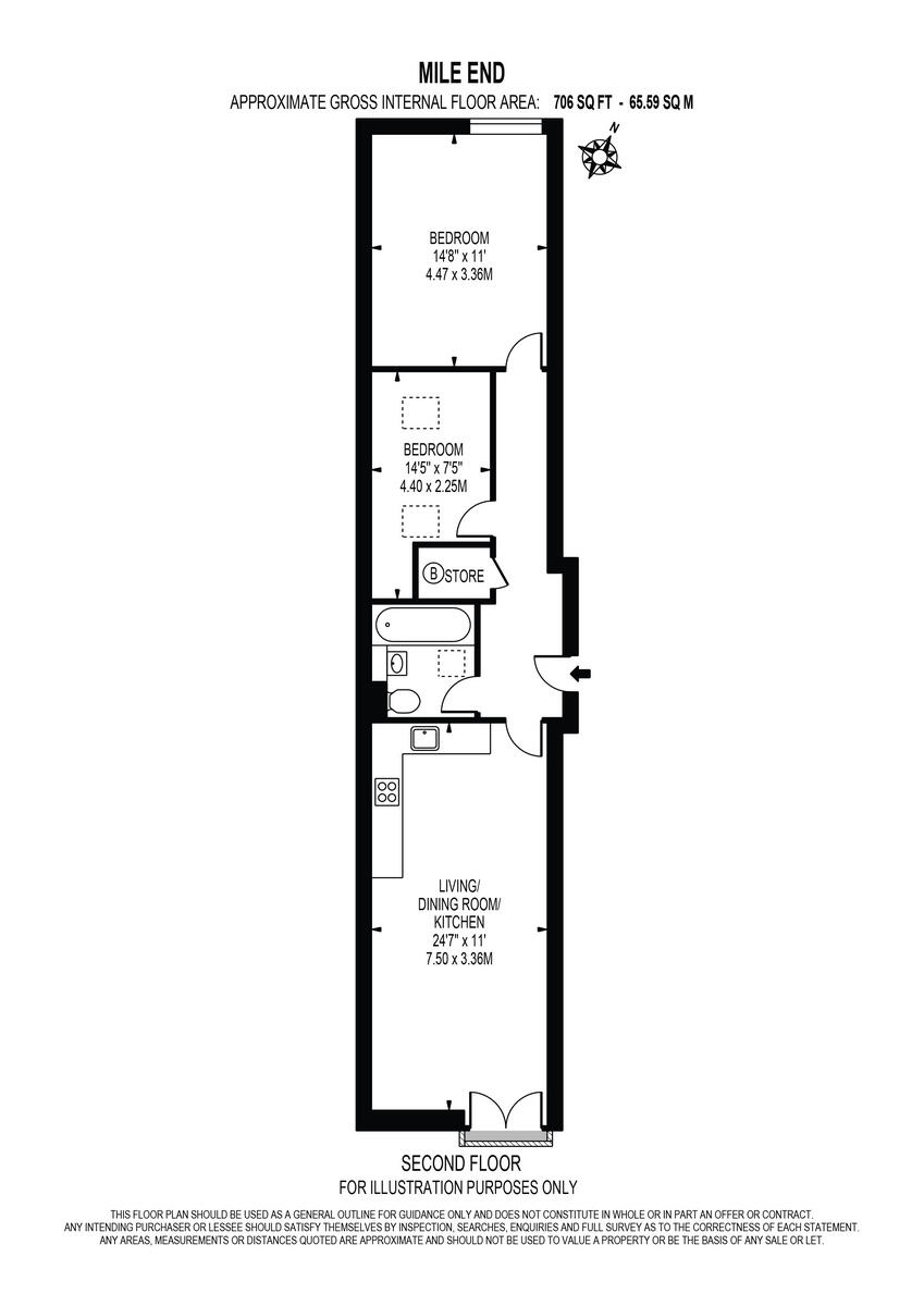
**Standout Features:**
- 2 spacious bedrooms in a top-floor apartment
- Shared freehold with over 700 sq ft of interior space
- Impressive double-height ceilings with skylights
- Excellent location between two major stations for transport connectivity
- Vibrant community with an array of local amenities nearby
**Concerns:**
- High crime rate in the area
- Shared ownership structure may limit future flexibility
Nestled in a bustling urban area, this bright top-floor apartment is perfect for first-time buyers seeking a blend of style and convenience. With over 700 sq ft of space and striking double-height ceilings enhanced by skylights, the property exudes an airy ambiance that amplifies its modern minimalism. Ideally located between Stepney Green and Mile End stations, residents will enjoy seamless access to various transport links, placing Central London at their fingertips.
Complementing the apartment’s charm are the lively local amenities, from bespoke eateries and cafes to scenic parks like Mile End Park and the Regent's Canal, which offer a breath of fresh air amidst city living. While the high crime rate warrants consideration, the property presents a unique opportunity to invest in a dynamic community. With its attractive features and unbeatable location, this stylish residence invites you to envision your new urban lifestyle—don’t miss out on this extraordinary find!
2 bedroom flat for sale in Hannibal Road, London, E1 — £425,000 • 2 bed • 1 bath • 545 ft²
1 bedroom apartment for sale in The Galleries, Cleveland Way E1 — £800,000 • 1 bed • 1 bath • 1500 ft²
2 bedroom flat for sale in Cephas Avenue, London E1 — £600,000 • 2 bed • 1 bath • 684 ft²
1 bedroom flat for sale in Coborn Road, London, E3 — £275,000 • 1 bed • 1 bath • 323 ft²
3 bedroom flat for sale in Burdett Road, London, E3 — £375,000 • 3 bed • 1 bath • 773 ft²
2 bedroom ground floor flat for sale in Rigel House, 18 Hemming Street, London, E1 — £190,500 • 2 bed • 1 bath • 1087 ft²


















































