Chain-free, long lease apartment with balcony, allocated parking and NHBC warranty..
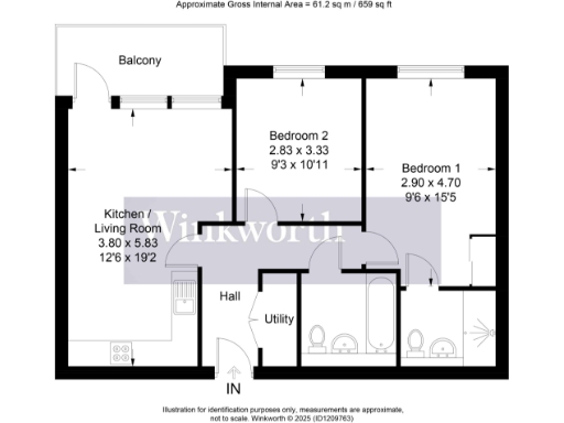
- Two double bedrooms and two bathrooms
Set on the Hertsmere Mews development, this modern two-bedroom, two-bathroom apartment offers comfortable urban living with long lease security. Built by Bellway around six years ago and sold chain free, it includes NHBC Warranty cover and a private balcony that brings daylight to the open plan living area.
Practical benefits include an allocated off-street parking space, visitors parking and a communal bike store. The 992-year lease removes typical lease-length concerns and the 659 sq ft layout suits first-time buyers, downsizers or buy-to-let investors looking for a low-management home in Borehamwood.
Be aware of a few material details: heating is by electric room heaters which can increase running costs; the property sits in an area with above-average crime rates; annual service charge is approximately £1,400 and ground rent is £250 per year. Council tax is described as moderate.
Overall this apartment presents a low-maintenance, secure starter-home or rental opportunity with long lease peace of mind and contemporary finishes, balanced by higher energy costs and ongoing communal charges that buyers should factor into affordability.
2 bedroom apartment for sale in Todd Close, Borehamwood, Hertfordshire, WD6 — £300,000 • 2 bed • 1 bath • 621 ft²
2 bedroom apartment for sale in Manor Way, Borehamwood, Hertfordshire, WD6 — £350,000 • 2 bed • 1 bath • 810 ft²
2 bedroom apartment for sale in Elstree Way, Borehamwood, Hertfordshire, WD6 — £375,000 • 2 bed • 1 bath • 657 ft²
1 bedroom flat for sale in Cavendish Hall House,Holmesley Road, Borehamwood, WD6 — £287,000 • 1 bed • 1 bath • 550 ft²
2 bedroom flat for sale in Nuffield House,Holmesley Road, Borehamwood, WD6 — £365,000 • 2 bed • 2 bath • 760 ft²
2 bedroom flat for sale in 2 bedroom flat in Borehamwood, WD6 — £310,000 • 2 bed • 1 bath • 743 ft²






































