**Standout Features:**
- Chain-free sale
- 2 spacious bedrooms
- Modern fitted kitchen
- Bright lounge area
- Communal garden access
- Close to public transport (8-minute walk to Ockendon Station)
- Leasehold with 153 years remaining
- Low service charge of £810 per year
- Energy-efficient features (double glazing, loft insulation)
- Allocated parking
**Concerns:**
- Dated bathroom fixtures needing potential updates
- Higher local crime rate
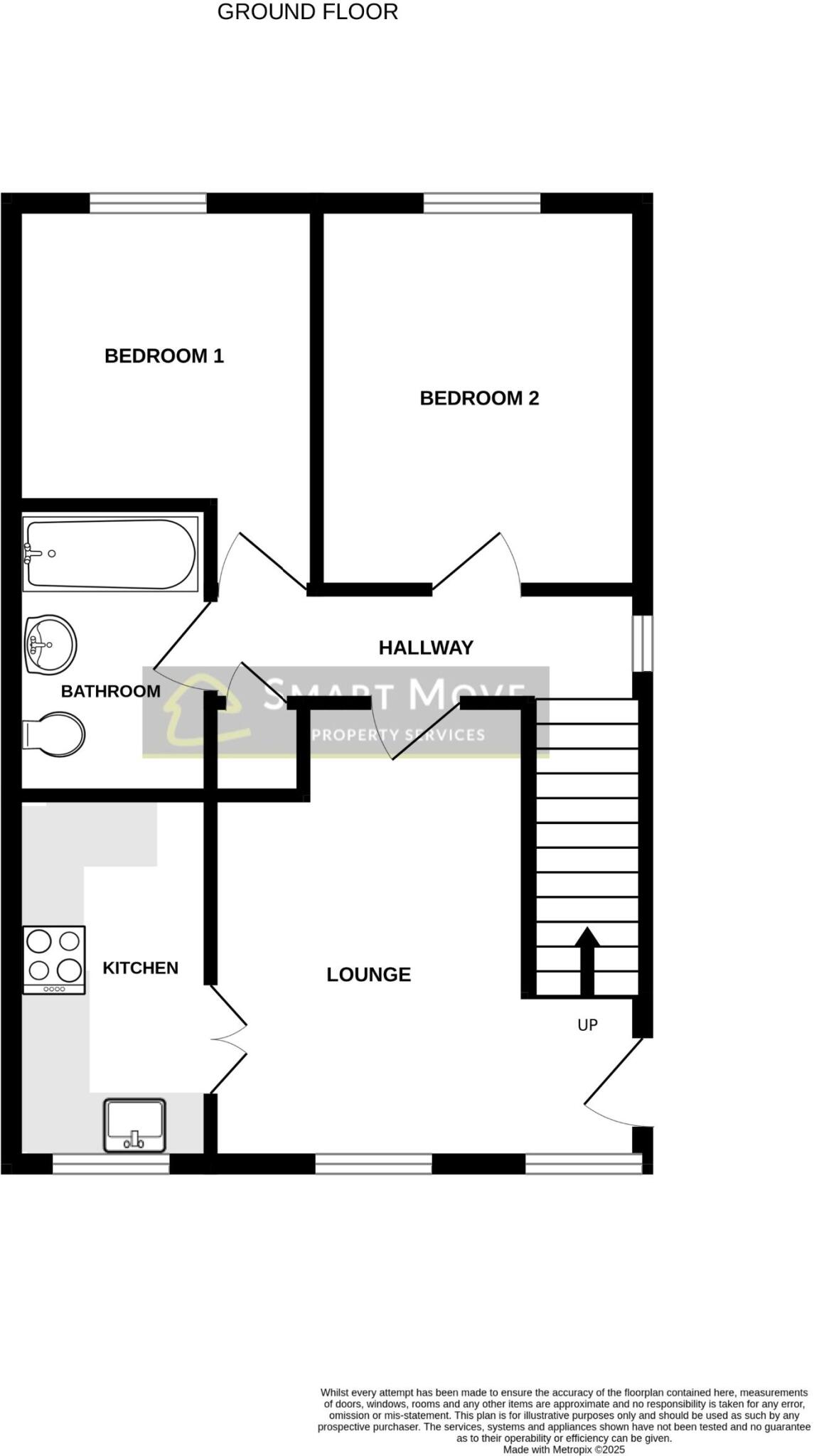
This inviting two-bedroom apartment is an excellent opportunity for first-time buyers or investors seeking a low-maintenance property. Positioned just an eight-minute stroll from Ockendon Station, the convenient location provides quick access to commuter routes, shopping precincts, and local amenities, enhancing its appeal. With modern high-gloss cabinetry in the kitchen and fresh fitted carpets throughout, the home radiates comfort. Enjoy the added benefit of a communal garden perfect for relaxation and social gatherings.
Though the bathroom is dated and may require some renovations, the apartment features energy-efficient windows and loft insulation, promising lower utility bills. Furthermore, the affordable annual service charge and council tax band B make this property a budget-friendly choice in a lively, accessible neighborhood. Don’t miss out on the chance to own a charming space in a growing community!
2 bedroom flat for sale in Tyssen Place, South Ockendon, Essex, RM15 — £190,000 • 2 bed • 1 bath • 493 ft²
2 bedroom flat for sale in Oak Court, North Road, South Ockendon, RM15 — £220,000 • 2 bed • 1 bath • 471 ft²
2 bedroom apartment for sale in Arisdale Avenue, South Ockendon, RM15 — £265,000 • 2 bed • 1 bath • 905 ft²
2 bedroom flat for sale in Archers Court, Arisdale Avenue, South Ockendon, RM15 — £225,000 • 2 bed • 1 bath • 439 ft²
1 bedroom apartment for sale in Avon Green, South Ockendon, RM15 — £140,000 • 1 bed • 1 bath • 445 ft²
2 bedroom flat for sale in Arisdale Avenue, Archers Court Arisdale Avenue, RM15 — £220,000 • 2 bed • 1 bath • 538 ft²














































