Top-floor two-bed with panoramic sea views, adjacent to the beach — ideal first home or investment.
- Top-floor two-bedroom apartment with panoramic sea views
- Directly adjacent to the beach; short walk to shops and station
- Share of freehold; long lease remaining (c.153 years)
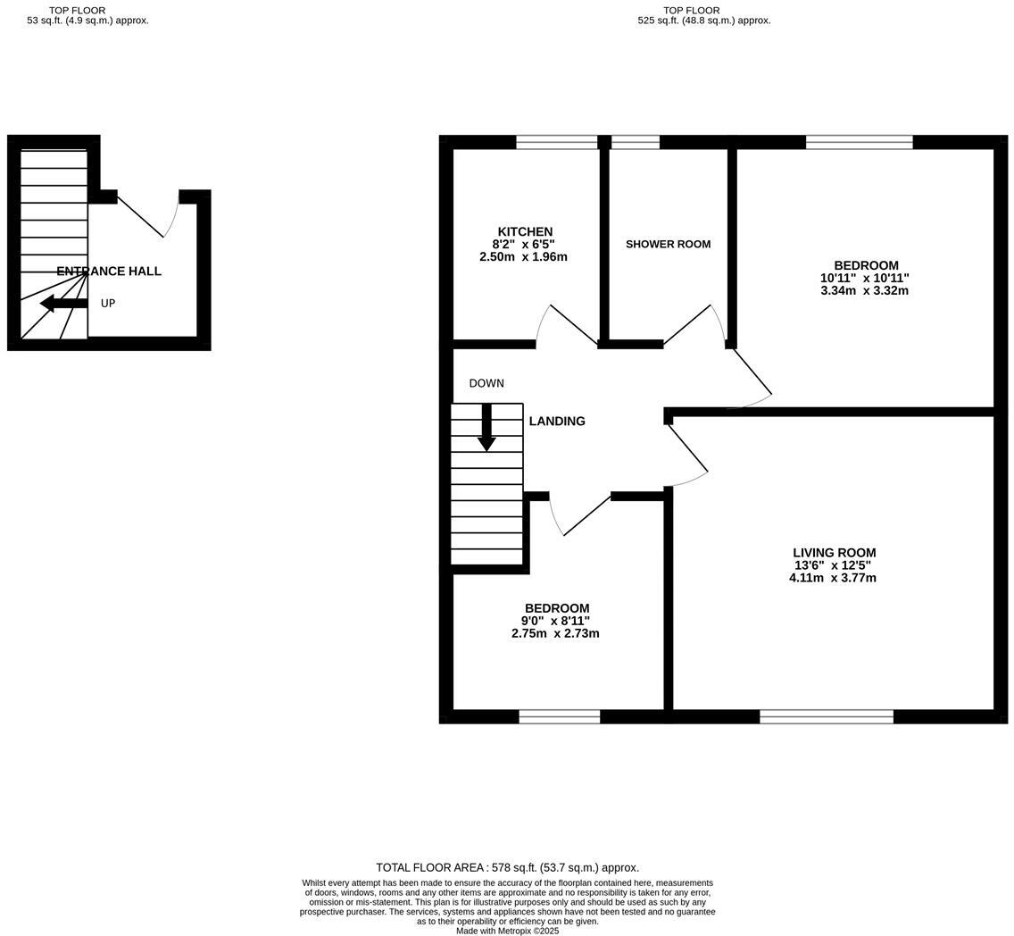
- Compact footprint (≈578 sq ft) with sloping/attic ceilings
- Service charge approximately £1,600 per year
- Solid brick, pre-1900 building; likely limited wall insulation
- High local crime and very deprived area — consider security
- Sold with no onward chain; suitable for buy-to-let or first purchase
Set on the top floor of a Victorian terrace, this compact two-bedroom flat delivers exceptional sea views and immediate beach access — a rare find in TN38. The living room faces the sea, while a separate fitted kitchen and tiled shower room complete the accommodation. Floorspace is modest (approx. 578 sq ft) with sloping/attic ceilings in parts and limited built-in storage.
Sold with share of freehold, a long lease (c.153 years) and no onward chain, the property suits first-time buyers or buy-to-let investors seeking a seafront position. Service charges average around £1,600 per year; mains gas central heating and double glazing are present, but insulation may be limited given the building's pre-1900 solid brick construction.
Be realistic about the setting: the area is very deprived with high local crime rates, average broadband speeds, and modest room sizes. The convenient local amenities, independent shops, eateries, and a mainline station to London support rental and holiday-let potential, but purchasers should allow for possible refurbishment to modernise finishes and improve insulation and storage.
2 bedroom flat for sale in Grosvenor Gardens, St. Leonards-On-Sea, TN38 — £325,000 • 2 bed • 1 bath • 778 ft²
2 bedroom flat for sale in Marina, St. Leonards-On-Sea, TN38 — £250,000 • 2 bed • 1 bath • 607 ft²
2 bedroom flat for sale in Marina, St Leonards-On-Sea, TN38 — £275,000 • 2 bed • 1 bath • 713 ft²
2 bedroom flat for sale in Marina, St. Leonards-On-Sea, TN38 — £300,000 • 2 bed • 1 bath • 677 ft²
2 bedroom flat for sale in St. Margarets Road, St. Leonards-On-Sea, TN37 — £170,000 • 2 bed • 1 bath • 617 ft²
2 bedroom flat for sale in West Hill Road, St. Leonards-On-Sea, TN38 — £350,000 • 2 bed • 1 bath • 761 ft²


































