Move-in-ready flat minutes from Brixton and Clapham North stations.
Bright open-plan kitchen/living room with modern fittings
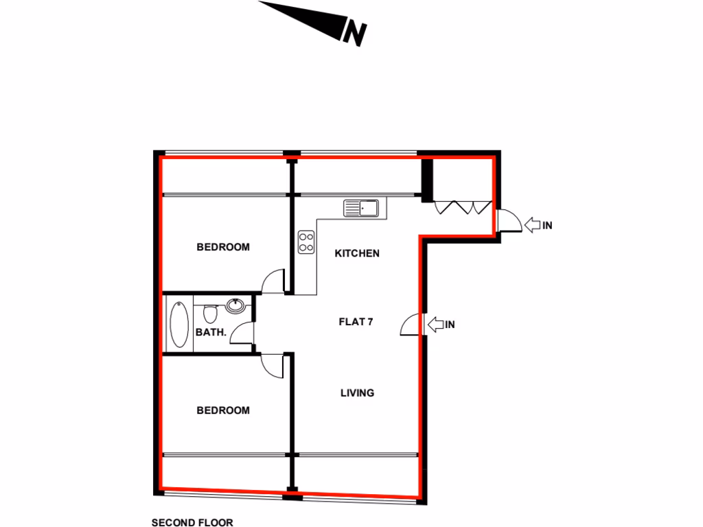
This compact two-bedroom apartment on Acre Lane offers a bright, modern living space with a long lease and immediate availability. The open-plan kitchen/living area is flooded with natural light and finished to a contemporary standard, making it an easy move-in for first-time buyers or commuters.
Practical positives include 119 years remaining on the lease, double glazing, and fast broadband and mobile signal. The location is the apartment’s strongest asset: a short walk to Brixton (Victoria Line) and Clapham North (Northern Line) stations, with cafés, restaurants and shops on the doorstep.
Buyers should note the apartment is small at c.517 sq ft and uses electric room heaters rather than gas central heating, which may affect running costs. Annual service charge and ground rent average about £2,000 and £500 respectively. The wider area scores as deprived with very high local crime levels, so consider personal safety and insurance implications.
Overall this is a well-presented, low-maintenance flat with genuine commuter convenience and long-lease security. It suits a first-time buyer or professional couple seeking a central London base and willing to accept compact internal space and higher service costs in exchange for location and modern finishes.
2 bedroom flat for sale in Acre Lane, London, SW2 — £400,000 • 2 bed • 2 bath • 762 ft²
2 bedroom flat for sale in Acre Lane, Brixton, SW2 — £499,999 • 2 bed • 2 bath • 761 ft²
2 bedroom flat for sale in Acre Lane, Brixton, SW2 — £525,000 • 2 bed • 1 bath • 749 ft²
2 bedroom flat for sale in Acre Lane, Brixton, SW2 — £500,000 • 2 bed • 1 bath • 581 ft²
2 bedroom apartment for sale in Belvedere Place, London, SW2 — £500,000 • 2 bed • 2 bath • 722 ft²
2 bedroom flat for sale in Milles Square, Brixton, SW9 — £500,000 • 2 bed • 2 bath • 687 ft²






































