**Standout Features:**
- Two/Three-bedroom apartment with private garden
- Large reception room ideal for entertaining
- Share of Freehold
- Own private entrance
- Located close to Warwick Avenue Underground (Bakerloo line)
**Concerns:**
- 80 years left on the lease may affect mortgage options
- High crime rate in the area
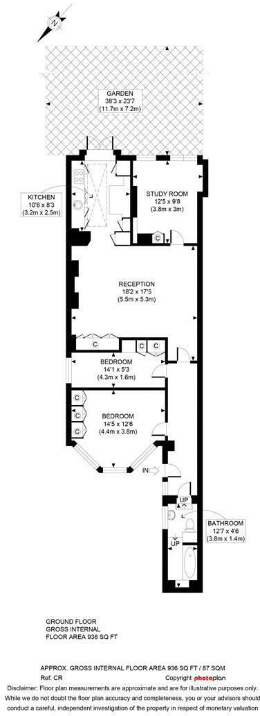
Discover this spacious two/three-bedroom garden flat nestled in the vibrant heart of Maida Vale. Featuring an expansive reception room complete with high ceilings and elegant wood flooring, this home offers ample entertaining space that flows seamlessly into a modern kitchen with a charming dining counter. Step outside to your own south-facing private garden, perfect for relaxation or gatherings. The flat comprises two generously sized double bedrooms, a versatile third bedroom or study, and a tiled bathroom.
Residents will benefit from a private entrance and the allure of being just moments away from an array of shops, bars, and restaurants along Shirland Road. Additionally, excellent transport links via Warwick Avenue Underground make commuting a breeze. Although the share of Freehold comes with 80 years remaining on the lease, it’s crucial to note that this may impact lending options, so potential buyers should explore financing possibilities.
Embrace the vibrant community and lifestyle that Maida Vale offers, but act quickly—a property with this kind of entertaining space and private garden won't be available for long!
3 bedroom apartment for sale in Sutherland Avenue, London, W9 — £1,250,000 • 3 bed • 2 bath • 1584 ft²
2 bedroom flat for sale in Sutherland Avenue, London, W9 — £860,000 • 2 bed • 2 bath • 940 ft²
2 bedroom apartment for sale in Sutherland Avenue, Maida Vale, W9 — £660,000 • 2 bed • 2 bath • 661 ft²
3 bedroom apartment for sale in Sutherland Avenue, London, W9 — £800,000 • 3 bed • 2 bath • 1065 ft²
2 bedroom apartment for sale in Shirland Road, Maida Vale, London, W9 — £1,000,000 • 2 bed • 2 bath • 1039 ft²
2 bedroom flat for sale in Amberley Road, Maida Vale, London, W9 — £600,000 • 2 bed • 1 bath • 666 ft²














































