**Standout Features:**
- Rare building plot with planning permission for a 4-bedroom detached house
- Sought-after village location in Trimley St Martin
- Off-road parking and enclosed garden space
- Near amenities and leisure facilities, including schools rated "Good"
**Concise Summary:**
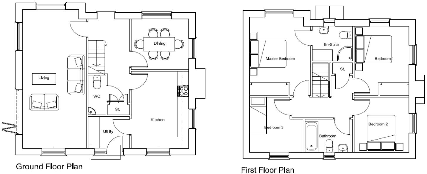
Discover a unique opportunity to create your dream home in the heart of Trimley St Martin with this generous building plot, which comes with approved planning permission for a modern four-bedroom detached house. The proposed layout includes a spacious entrance hall, cloakroom, lounge, dining room, kitchen with utility room, and an upper floor featuring a master bedroom with an en-suite and three additional bedrooms. The property offers convenient off-road parking and a fully enclosed garden.
Situated just three miles from the bustling seaside town of Felixstowe, this plot boasts an ideal location with vibrant local amenities, including independent shops, delightful cafés, and leisure facilities such as golf and sailing. Families will appreciate the proximity to reputable schools, all rated as "Good," ensuring quality education options.
While the plot is currently vacant and in need of development, it presents an exciting canvas for potential buyers eager to invest in a desirable rural lifestyle. Act quickly as opportunities like this in such a popular village don't last long!
House for sale in Cemetery Road, Ipswich, IP4 — £110,000 • 1 bed • 1 bath
Land for sale in Land To Rear Of Hamilton Road, Felixstowe, IP11 — £200,000 • 1 bed • 1 bath • 753 ft²
Land for sale in Felixstowe, IP11 — £350,000 • 3 bed • 3 bath • 2732 ft²
3 bedroom semi-detached house for sale in Roundhouse Avenue, Trimley St Martin, IP11 — £349,995 • 3 bed • 2 bath • 1010 ft²
2 bedroom semi-detached house for sale in Roundhouse Avenue, Trimley St Martin, IP11 — £264,995 • 2 bed • 1 bath • 631 ft²
Land for sale in Holly Close, Little Bealings, Woodbridge, Suffolk, IP13 — £295,000 • 1 bed • 1 bath • 1700 ft²


























