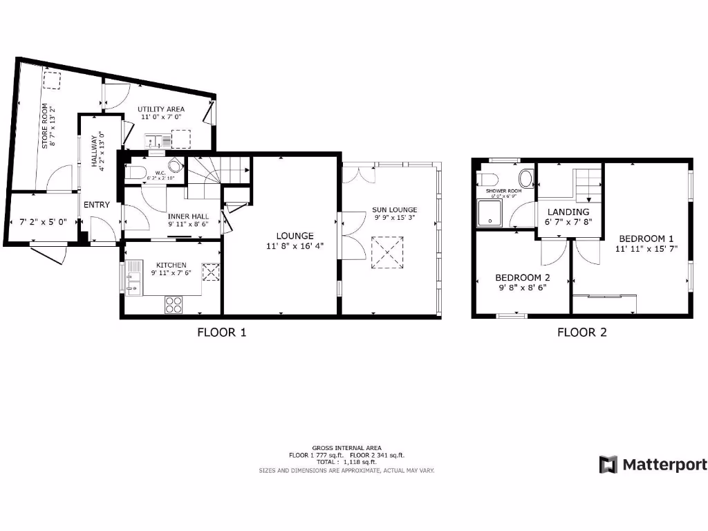
Low-maintenance two-bedroom home with private south patio and two parking spaces.
Spacious vaulted south-facing sun room with large picture window
Set in a secluded courtyard just off Rhos Street, this extended two-bedroom townhouse offers a larger-than-expected footprint and a sun-filled south-facing extension. The vaulted sun room and private paved patio make the house feel bright and low-maintenance, while the generous lounge and fitted kitchen suit comfortable day-to-day living.
Practical extras include off-street parking for two, a substantial ground-floor store/workroom with utility space, and double glazing installed after 2002. The property is freehold with mains gas central heating and modest council tax costs — appealing for buyers seeking manageable running costs in a central town location.
There are a few factual points to note: the house is a system-built property from the late 1970s/early 1980s with assumed partial wall insulation, so it may benefit from further insulation or energy upgrades. The area has above-average crime statistics and high local deprivation, which should be considered alongside the proximity to shops, hospital and local amenities. The accommodation includes only one shower room, which may limit appeal for some buyers.
Overall this is a practical, well-proportioned two-bedroom home with useful workshop space and a strong sunny aspect. It will suit downsizers or buyers wanting a low-maintenance town property with potential for targeted energy improvements or cosmetic modernisation.
3 bedroom semi-detached house for sale in Llanrhydd Street, Ruthin, LL15 — £290,000 • 3 bed • 1 bath • 1298 ft²
2 bedroom terraced house for sale in Llys Y Castell, Ruthin, LL15 — £170,000 • 2 bed • 2 bath • 747 ft²
4 bedroom link detached house for sale in Tyn Y Parc, Ruthin, LL15 — £270,000 • 4 bed • 1 bath • 1350 ft²
3 bedroom semi-detached house for sale in Parc Y Dre Road, Ruthin, LL15 — £230,000 • 3 bed • 1 bath • 1016 ft²
3 bedroom terraced house for sale in Mwrog Street, Ruthin, LL15 — £220,000 • 3 bed • 1 bath • 1299 ft²
3 bedroom semi-detached house for sale in Parc Y Dre Road, Ruthin, LL15 — £210,000 • 3 bed • 1 bath • 463 ft²






































































