**Standout Features:**
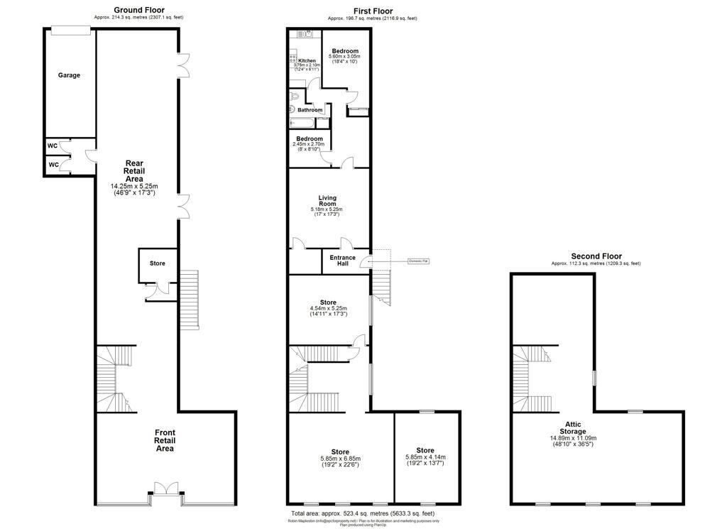
- Large retail unit spanning three floors.
- First floor includes a two-bedroom flat with separate access.
- Rear car park accommodating approximately 14 vehicles, with some spaces generating rental income.
- Prime location in bustling town center, close to popular retailers and amenities.
- Potential for redevelopment, subject to necessary planning consents.
- Structural character with a Grade II listed Georgian façade, high ceilings, and spacious interiors.
**Concerns:**
- Property needs refurbishment; would require maintenance investment.
- Listed status may complicate future modifications or renovations.
- Property is located in an area with high crime rates and significant deprivation.
This expansive mixed-use property presents a unique opportunity for both investors and families alike. Located in the heart of Louth, this Grade II listed Georgian building features a retail shop on the ground floor and a comfortable two-bedroom flat above, perfect for generating rental income or a living space. With its large car park that currently accommodates paid rentals, you have immediate cash flow potential while exploring the possibilities for redevelopment—thanks to the generous plot size and excellent location. Enjoy the local amenities, including shops and restaurants, while benefiting from the vibrant town atmosphere.
While the building requires some care and maintenance, the potential for revitalization is strong. Don't miss out on this exceptional value at a guide price of £300,000, where you can step into a bustling community with promising future prospects.
Shop for sale in Queen Street, Louth, LN11 — £80,000 • 1 bed • 1 bath • 754 ft²
High street retail property for sale in Market Place, Louth, Lincolnshire, LN11 — £225,000 • 1 bed • 1 bath • 2473 ft²
Commercial property for sale in Aswell Street, Louth, LN11 — £165,000 • 2 bed • 1 bath • 668 ft²
High street retail property for sale in 6-12 New Street & 38 Eastgate, Louth, Lincolnshire, LN11 — £435,000 • 1 bed • 1 bath • 3156 ft²
High street retail property for sale in Cornmarket, Louth, Lincolnshire, LN11 — £250,000 • 1 bed • 1 bath • 2500 ft²
Shop for sale in Eastgate, Louth, LN11 — £550,000 • 1 bed • 1 bath • 1129 ft²


































































