**Standout Features:**
- **Spacious 3-bedroom mid-terrace** with high ceilings and period features.
- **Quiet no-through road** location, providing a peaceful residential environment.
- **Private rear yard** perfect for outdoor activities or relaxation.
- **No onward chain**, allowing for a quick move-in process.
- **On-street parking** available close to the property.
- Located within walking distance of local amenities, parks, and schools.
**Concerns:**
- Property requires renovation throughout.
- High crime rate in the area.
- Limited insulation in solid brick walls may affect energy efficiency.
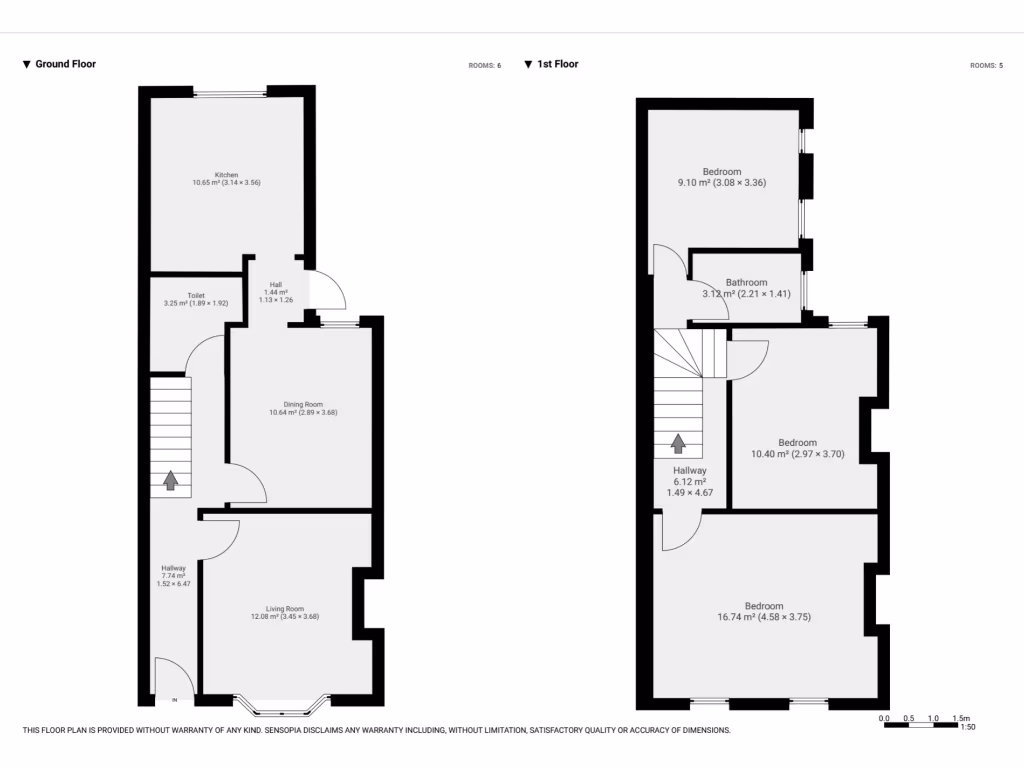
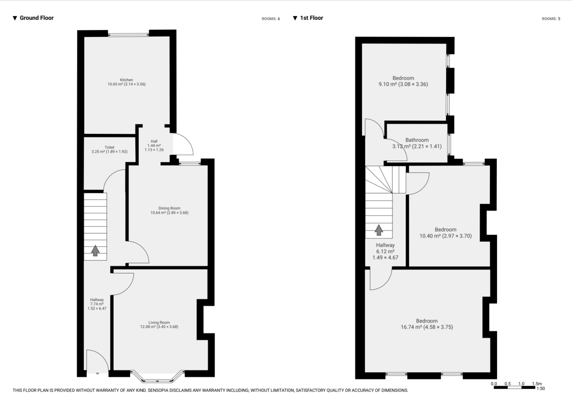
This charming Victorian terraced house is a fantastic opportunity for first-time buyers, families, or investors looking to put their personal touch on a charming home. With three generous bedrooms and a practical family bathroom, the property is designed for comfortable living. The well-sized living and dining areas flow into a galley kitchen, leading to an enclosed backyard—perfect for kids to play or for entertaining friends.
Although the house needs some modernization, its unique period features and spacious layout provide an excellent starting point for renovation. Its location on a tranquil street ensures privacy while still being conveniently close to local shops, parks, and public transport links.
If you’re seeking a project or a starter home with great potential, don’t miss out on this opportunity. Schedule your viewing today—properties like this don’t stay on the market for long!
3 bedroom terraced house for sale in Rydal Street, Liverpool, Merseyside, L5 — £85,000 • 3 bed • 1 bath • 894 ft²
3 bedroom terraced house for sale in Armley Road, Liverpool, Merseyside, L4 — £90,000 • 3 bed • 1 bath • 1002 ft²
3 bedroom terraced house for sale in Oxton Street, Liverpool, Merseyside, L4 — £100,000 • 3 bed • 1 bath • 958 ft²
3 bedroom terraced house for sale in Beresford Road, Liverpool, Merseyside, L8 — £120,000 • 3 bed • 1 bath • 840 ft²
3 bedroom terraced house for sale in Snaefell Avenue, Tuebrook, Liverpool, L13 — £127,450 • 3 bed • 1 bath • 3703 ft²
3 bedroom terraced house for sale in Victoria Road, Tuebrook, Liverpool, Merseyside, L13 — £150,000 • 3 bed • 1 bath • 1120 ft²






























































