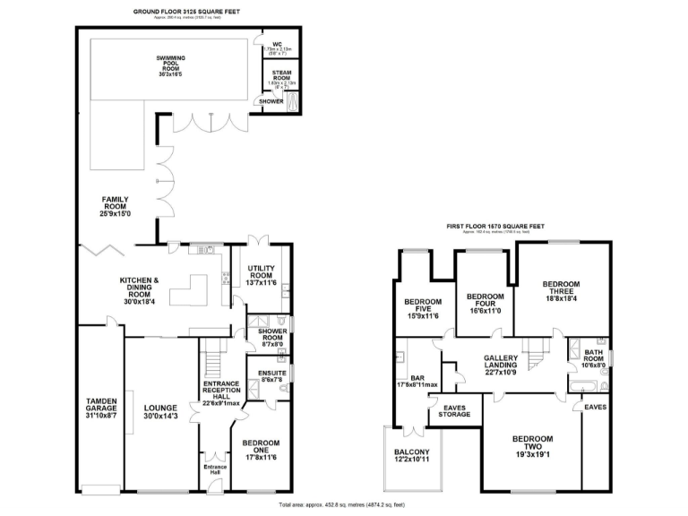
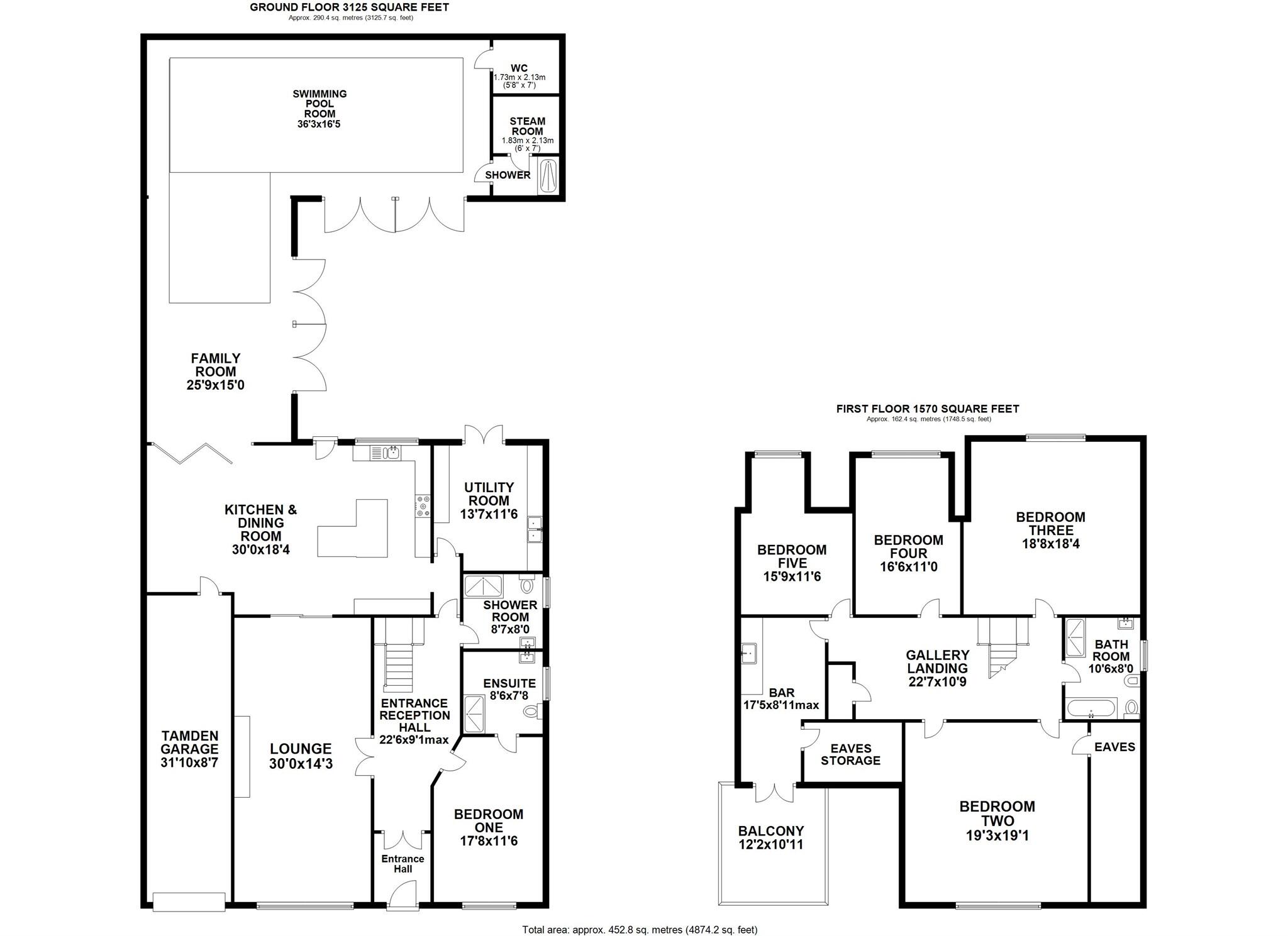
Substantial five-bedroom home with indoor pool and panoramic countryside views.
- Five double bedrooms and four bathrooms, generous bedroom proportions
- Luxury fully heated indoor pool with steam room and pool plant room
- Large open-plan 30 ft kitchen/dining and 30 ft lounge
- Private sun-trap courtyard garden and first-floor balcony with panoramic views
- Extensive 2017 rebuild: new wiring, plumbing, glazing and underfloor heating
- Off-street parking for 5–6 cars and 31ft tandem garage
- Three gas boilers; pool and heating will have significant running costs
- Council tax expensive; area flagged as very deprived (check local data)
Set on an elevated plot with far-reaching countryside views, this expansive five-double-bedroom detached bungalow offers nearly 4,700 sq ft of recently refurbished living space. The home was largely rebuilt and modernised in 2017 and centres on a spectacular fully heated indoor swimming pool, steam room and adjoining family room — a rare, ready-made leisure suite for family living and entertaining.
Principal reception spaces are generously proportioned: a 30 ft lounge, 30 ft open-plan kitchen/dining with quartz worktops and island, a 25 ft family room and a 17 ft first-floor games/bar room leading to a private sun balcony. Practical additions include a large utility, tandem garage, off-street parking for several cars and contemporary security systems including CCTV and fibre-optic connectivity.
The vendor’s 2017 works included new wiring, plumbing, aluminium double glazing, underfloor heating and three boilers that service the property. Interiors are largely high spec throughout, with bespoke oak joinery, stone finishes and multiple en-suite / shower rooms across the sleeping accommodation, making the house suitable for a multi-generational family or owners who want significant leisure and guest space.
Important considerations: the property sits within an area described as having very high deprivation statistics despite being in an affluent local neighbourhood; council tax is described as expensive. The indoor pool has a basement plant room with limited ceiling height and ongoing running, servicing and safety costs should be budgeted for. Buyers should verify services and recent works independently.
6 bedroom detached house for sale in Cog Road, Sully, CF64 — £1,300,000 • 6 bed • 4 bath • 2681 ft²
6 bedroom detached house for sale in Westridge, Porthkerry (within Porthkerry Park), CF62 3BY, CF62 — £1,500,000 • 6 bed • 3 bath • 6372 ft²
5 bedroom detached house for sale in St Nicholas, Cowbridge, CF5 — £1,750,000 • 5 bed • 3 bath • 4105 ft²
4 bedroom detached bungalow for sale in Swansea Road, Merthyr Tydfil, CF48 — £465,000 • 4 bed • 3 bath • 1676 ft²
5 bedroom detached house for sale in Felindre Road, Pencoed, CF35 — £850,000 • 5 bed • 4 bath • 2946 ft²
5 bedroom detached house for sale in Ffordd Las, Caerphilly, CF83 — £750,000 • 5 bed • 3 bath • 3774 ft²






































































































































