**Standout Features:**
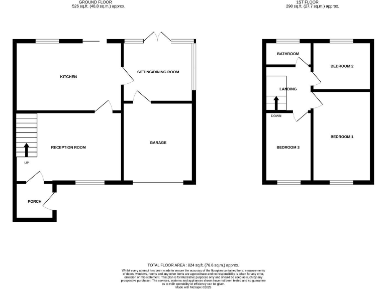
- Spacious three-bedroom semi-detached home in Stalybridge
- Generous garden plot with tiered landscaping and seating area
- Off-street parking for multiple vehicles, plus a garage
- Modern kitchen with integrated appliances
- Good access to local amenities and excellent commuter links
**Concerns:**
- Council-owned portion of the rear garden is subject to a rent charge
- Broadband speeds are slow, which may affect connectivity
Discover a fantastic opportunity to create a family haven in this well-proportioned three-bedroom semi-detached home, ideally located in a sought-after area of Stalybridge. The property features a modern kitchen with integrated appliances and a comfortable living space, perfect for gatherings. Outside, enjoy a generous tiered garden that provides a beautiful backdrop for outdoor entertaining, along with a paved driveway and garage for ample parking.
While the property enjoys a very low crime rate and excellent mobile signal, prospective buyers should note that part of the rear garden incurs a rent charge from Tameside Council. Additionally, with slow broadband speeds, it may not be suitable for those needing high connectivity. This home is ideally suited for growing families or those looking for comfort, security, and future renovation potential. It won't last long on the market—schedule your viewing today and picture the possibilities!
3 bedroom semi-detached house for sale in Balmoral Drive, Stalybridge, SK15 — £259,500 • 3 bed • 1 bath • 1034 ft²
3 bedroom semi-detached house for sale in Kendal Court, Stalybridge, Greater Manchester, SK15 — £269,000 • 3 bed • 3 bath • 950 ft²
3 bedroom detached house for sale in Hereford Way, Stalybridge, SK15 — £485,000 • 3 bed • 2 bath • 1441 ft²
3 bedroom end of terrace house for sale in Hawthorn Drive, Stalybridge, SK15 — £235,000 • 3 bed • 1 bath • 941 ft²
3 bedroom semi-detached house for sale in High Bank Avenue, Stalybridge, SK15 — £315,000 • 3 bed • 1 bath • 947 ft²
3 bedroom semi-detached house for sale in Cherry Grove, Stalybridge, Greater Manchester, SK15 — £250,000 • 3 bed • 1 bath • 851 ft²










































































































































