Large plot with conversion potential near Looe and Polperro.
Victorian stone facade with dual gables and countryside views
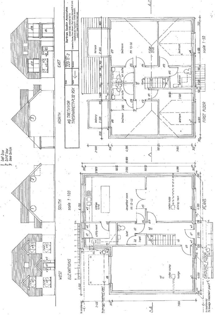
Set on a very large plot near Pelynt, this Victorian-linked detached house offers flexible living and strong development potential for families or buyers seeking space and scope. The stone facade, dual gables and traditional farmhouse setting deliver character and far-reaching countryside views, while the generous grounds include an outbuilding and a former piggery with conversion opportunity (subject to consents).
Internally the extended layout provides around 1,571 sq ft and approximately 12 rooms across multiple storeys, including four bedrooms. The property requires renovation throughout: only one bathroom is fitted and upgrades to services, finishes and possibly structure will be needed. The vendor is open to negotiation on how much refurbishment will be completed prior to sale.
Practical benefits include off-street parking for numerous cars, excellent mobile signal and fast broadband, plus a low flood risk. Local schooling is good, and the house is conveniently positioned for Looe and Polperro. Note the area is classified as a remoter rural community with higher local deprivation, and council tax band is unknown, which may affect running costs and access to some services.
This is a hands-on purchase for buyers who value space, privacy and potential: ideal for a growing family wanting countryside living, or someone looking to renovate and create a substantial home or holiday letting income (subject to planning). Viewings will reveal the house’s scope and the level of work required to unlock its full value.
4 bedroom link detached house for sale in Pelynt, Looe, Cornwall, PL13 — £375,000 • 4 bed • 3 bath • 808 ft²
10 bedroom detached house for sale in North Muchlarnick, Pelynt, Looe, PL13 — £725,000 • 10 bed • 1 bath • 1434 ft²
4 bedroom bungalow for sale in Pelynt, Looe, Cornwall, PL13 — £600,000 • 4 bed • 3 bath • 2315 ft²
2 bedroom semi-detached house for sale in Wilton Terrace, Pelynt, Looe, PL13 — £225,000 • 2 bed • 1 bath • 894 ft²
6 bedroom detached house for sale in Winsor Estate, Pelynt, Looe, Cornwall, PL13 — £350,000 • 6 bed • 4 bath • 2400 ft²
5 bedroom detached house for sale in Lansallos, Nr. Looe, Cornwall, PL13 — £795,000 • 5 bed • 3 bath • 2414 ft²


































































