Long lease ground-floor apartment with parking — ideal first-time purchase or buy-to-let..
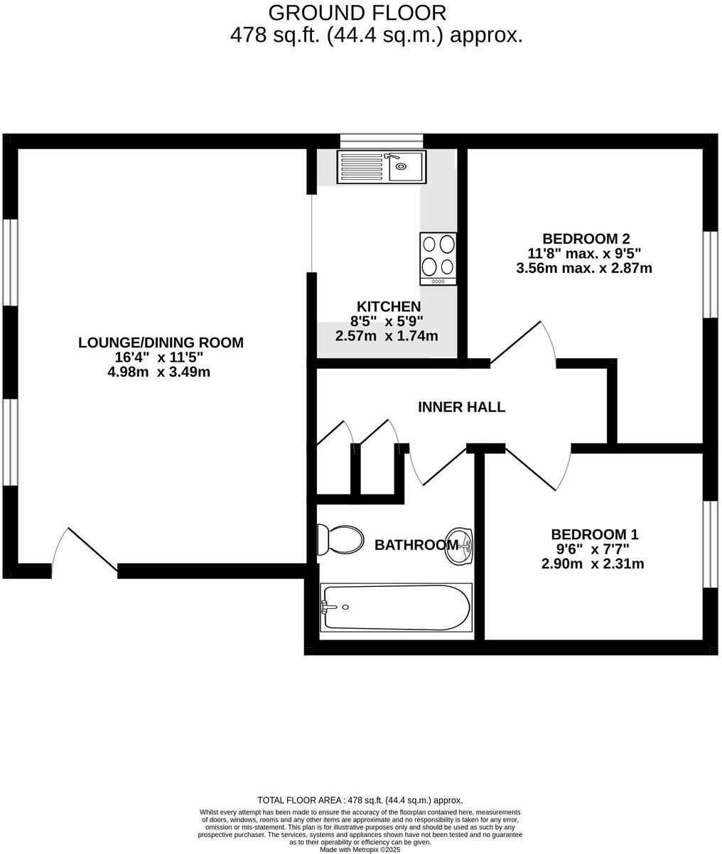
- Ground-floor two-bedroom apartment, approx. 478 sq ft
- Long lease: 154 years remaining (from 1990)
- Allocated off-street parking space, communal gardens
- Gas central heating by radiators; sealed unit double glazing
- EPC rating C; built circa 1991–1995
- Service charge around £1,340 p.a.; peppercorn ground rent
- Council Tax Band C: £2,175.25 (2025/26)
- Small overall footprint; interior is dated, may need updating
A compact, ground-floor two-bedroom apartment in Scarlet Oaks, Camberley, suited to a first-time buyer seeking a straightforward move-in or a landlord targeting local rental demand. The flat offers gas central heating, sealed-unit double glazing and an allocated parking space, all set within well-kept communal gardens. The long lease (approximately 154 years remaining) and no onward chain simplify purchasing logistics.
Accommodation is modest at about 478 sq ft: a lounge/dining room with an archway to a fitted kitchen, two rear-aspect bedrooms, bathroom with a white suite and built-in hallway storage. EPC C signals reasonable efficiency for its age, and mains gas with radiators provides conventional heating.
Practical costs and constraints are clear: an annual service charge of about £1,340 and council tax band C (£2,175.25 for 2025/26). The interior styling is dated in places and the overall footprint is small, so buyers wanting more living space or a contemporary finish should factor in potential refurbishment. Local amenities, schools and transport links make this a well-located, practical purchase for those starting out or investing locally.
2 bedroom apartment for sale in Sullivan Road, Camberley, GU15 — £325,000 • 2 bed • 2 bath • 514 ft²
1 bedroom apartment for sale in Shelley Court, Camberley, Surrey, GU15 — £150,000 • 1 bed • 1 bath • 436 ft²
2 bedroom flat for sale in Gordon Court, Gordon Road, Camberley, GU15 — £210,000 • 2 bed • 1 bath • 670 ft²
2 bedroom flat for sale in Camberley, Surrey, GU15 — £260,000 • 2 bed • 2 bath • 645 ft²
2 bedroom flat for sale in Camberley, Surrey, GU15 — £270,000 • 2 bed • 2 bath • 775 ft²
2 bedroom flat for sale in Pine Avenue, Camberley, Surrey, GU15 — £360,000 • 2 bed • 2 bath • 989 ft²


























