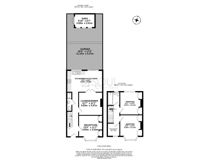
Three-bedroom mid-terrace, approx. 971 sq ft
A well-located three-bedroom mid-terrace in New Malden, offered chain-free and ready for immediate occupation. The house provides two reception rooms, a fitted kitchen-diner, downstairs shower/WC and a generous family bathroom upstairs — practical layout for family living. Off-street driveway parking and a west-facing rear garden with decking make outdoor entertaining straightforward on sunny afternoons.
The property was built c.1900–1929 and retains period character such as a front bay window and solid brick walls. The loft offers scope for further enlargement (subject to consents), and internal rooms are a comfortable size across approximately 971 sq ft. Local amenities are strong: within walking distance of New Malden High Street, New Malden station, and highly rated primary schools including Burlington Infant and Junior Schools.
Buyers should note a few practical considerations: the solid brick walls are assumed uninsulated, double glazing install dates are unknown, and services/appliances have not been tested — further inspection is advisable. The plot is relatively small, and while there is off-street parking on the driveway, there is no garage. Overall this is a convenient, well-positioned family home with straightforward potential to update further if desired.
3 bedroom terraced house for sale in Albert Road, New Malden, KT3 — £550,000 • 3 bed • 1 bath • 816 ft²
3 bedroom terraced house for sale in Queens Road, New Malden, KT3 — £610,000 • 3 bed • 3 bath • 1193 ft²
3 bedroom terraced house for sale in Byron Avenue, New Malden, KT3 — £500,000 • 3 bed • 1 bath • 824 ft²
3 bedroom end of terrace house for sale in Queens Road, New Malden, KT3 — £612,500 • 3 bed • 1 bath • 962 ft²
3 bedroom terraced house for sale in Cleveland Road, New Malden, KT3 — £710,000 • 3 bed • 2 bath • 935 ft²
3 bedroom end of terrace house for sale in Claremont Avenue, New Malden, KT3 — £635,000 • 3 bed • 1 bath • 983 ft²






































































































