Period semi with large garden, driveway and refurbishment potential.
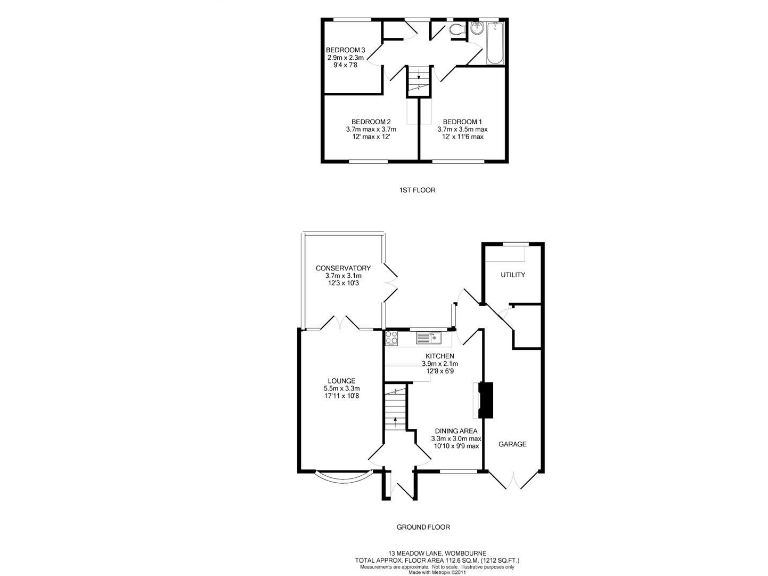
Three bedrooms with family bathroom plus separate WC
A traditional three-bedroom semi-detached home offering generous parking and a large rear garden, well suited to growing families. The house features a bright living room with bay window, a conservatory that opens onto the garden, a combined kitchen/dining space and practical utility and storage rooms (one formerly a garage).
Practical benefits include mains gas central heating, double glazing and a spacious driveway with room for several vehicles. Local amenities in Wombourne are close by — shops, leisure facilities, good primary and secondary schools and regular buses into Wolverhampton and nearby towns.
Buyers should note the property requires some updating: the conservatory has a polycarbonate roof, the energy rating is EPC D and there is a single family bathroom plus a separate WC. There is clear potential to modernise the kitchen and bathroom and to reconfigure or upgrade the former garage/storage area for additional living use.
Overall this freehold house is a solid family purchase in an established suburb, offering outdoor space, off-street parking and scope to add value through targeted refurbishment.
3 bedroom semi-detached house for sale in 48 Van Diemans Road, Wombourne, WV5 — £249,500 • 3 bed • 1 bath • 875 ft²
3 bedroom semi-detached house for sale in 44 Sandringham Road, Wombourne, Wolverhampton, WV5 — £287,000 • 3 bed • 1 bath • 852 ft²
3 bedroom semi-detached house for sale in 9 Sutherland Drive, Wombourne, WV5 — £375,000 • 3 bed • 1 bath • 1039 ft²
3 bedroom semi-detached house for sale in 34 Rennison Drive, Wombourne, Wolverhampton, WV5 — £350,000 • 3 bed • 2 bath • 1111 ft²
3 bedroom semi-detached house for sale in Clee View Road, Wombourne, WV5 — £279,950 • 3 bed • 1 bath • 628 ft²
3 bedroom semi-detached house for sale in 77 Wombourne Park, Wombourne, WV5 — £285,000 • 3 bed • 1 bath • 961 ft²






































